Prodej - dům/vila, 145 m²
Prodej Rodinný dům, 145㎡
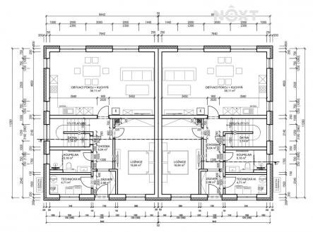
Ve výhradním zastoupení vám představujeme projekt Nové domy Žumberk – moderní rezidenční výstavbu rodinných domů v klidném místě na kraji obce. Jedná se o prodej hrubých staveb rodinných domů se sedlovou střechou o dispozici 4+kk, o obytné ploše 145 m2, které vám umožní vytvořit si bydlení přesně podle vašich představ. Popis lokality: Žumberk je městys v okrese Chrudim v Pardubickém kraji. Leží na okraji Českomoravské vrchoviny deset kilometrů jihovýchodně od města Chrudim, v místech kde se Polabská nížina mění v pahorkatinu. Žije zde 284 obyvatel. Skladba domu: základové pásy, železobetonová deska, hydroizolace glastek 40, zdivo PORFIX, střešní taška betonová Bramac, krov, trop vložka styrol, betonové schodiště, dvouplášťový komín Schiedel. Příprava pro tepelné čerpadlo, krb a projekt pro na fotovoltaiku. Lokalita: Klidná část obce. Inženýrské sítě: Vodovod, 230V, Veřejná kanalizace, plyn Asfaltová silnice, Vlak, Silnice, Autobus. Pro komunikaci uvádějte evidenční číslo zakázky N113875.


