Prodej - dům/vila, 149 m²
RD 5+kk ve Zlíně, Nivy II s park. stáním, terasou a zahradou
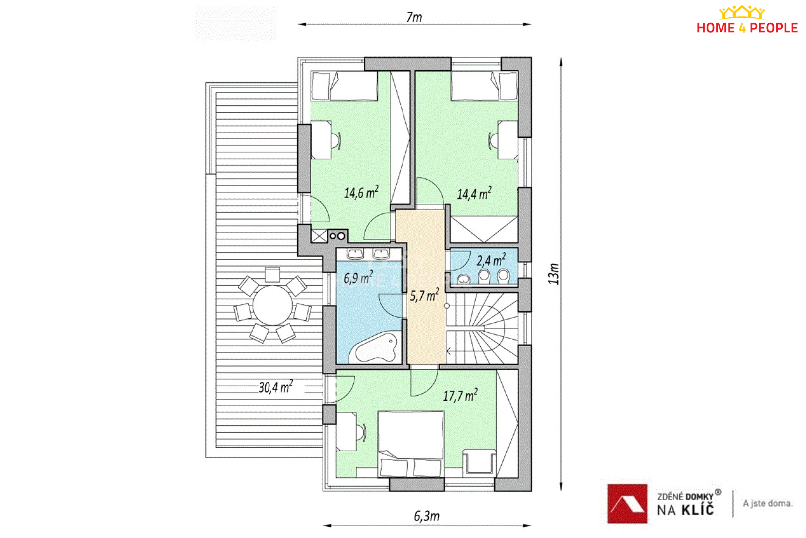
Váš nový domov ve Zlíně. Kde se historie potkává s moderním životem! Představte si domov, který v sobě nese duši Zlína, ale zároveň nabízí komfort a efektivitu 21. století. Přesně takový je náš nový patrový dům 5+kk na klíč, inspirovaný nadčasovou elegancí. Je to perfektní útočiště pro Vaši až pětičlennou rodinu, kde se budete cítit hrdě a spokojeně. Zapomeňte na starosti s výstavbou! Stavební povolení je již v ruce a my startujeme do 30 dnů, abychom Vám předali klíče od Vašeho vysněného domova za pouhých 12-14 měsíců. Komfort na klíč. Od A do Z. Užijte si bydlení bez kompromisů, kde je myšleno na každý detail. V ceně se základní fasádou, projekt, základová deska, veškeré přípojky, až po kolaudaci a finální úpravy. Prostorný a efektivní dům s užitnou plochou 149 m² pro Vaši rodinu s nízkými provozními náklady. Vlastní pozemek 400 m² v soukromí a pohodlné parkovací stání 36 m². Moderní Technologie pro Váš Klid. V interiéru na Vás čeká to nejlepší z moderních technologií. Ekologické a úsporné vytápění: Teplovodní podlahové topení v celém domě, poháněné tepelným čerpadlem se 180 L zásobníkem na teplou vodu. Pocit tepla a komfortu po celý rok. Vysoký standard vybavení: Kvalitní elektroinstalace, kompletní sanitární vybavení s moderními bateriemi, a elegantní interiérové dveře s obložkami. Přizpůsobte si své sny. Flexibilita dispozice: Možnost posunu příček a individuálních úprav již ve fázi projektu. Vytápění na míru. Dle dohody změníme systém vytápění nebo vystavíme komín pro krbová kamna/vložku pro útulné večery. Pro maximální pohodlí a luxus si můžete dům rozšířit o kryté garážové stání propojené s domem a stylovou terasu – krytou či nekrytou za příplatek. Nadstandardní výbavu: Chytrou domácnost, klimatizaci, rekuperaci, externí žaluzie/rolety nebo fotovoltaiku pro ještě větší úspory a komfort. Tento dům není jen stavba, je to životní styl. Spojení tradiční zlínské estetiky s moderními technologiemi a nízkými náklady. Nenechte si ujít tento jedinečný domov! Podívejte se sami! Srdečně Vás zveme na prohlídku pozemků a našich již realizovaných staveb, kde se na vlastní oči přesvědčíte o kvalitě a smyslu pro detail. Kontaktujte našeho makléře ještě dnes a udělejte první krok k Vašemu novému domovu ve Zlíně! Ev. číslo: 32040.


