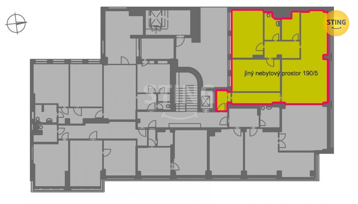
Pronájem - kanceláře, 108 m²
Pronájem komerčních prostor s možností zázemí k bydlení | Centrum Zlína
Hledáte reprezentativní prostory pro své podnikání v centru Zlína s možností soukromého zázemí a zajištěným parkováním? Máme pro vás exkluzivní nabídku! K pronájmu nabízíme atraktivní prostory po kompletní vkusné rekonstrukci. Popis prostor - celková užitná plocha je 108 m2 - umístění ve 3. nadzemním podlaží budovy s výtahem - dispozice: 3 samostatné místnosti, z toho jedna s velkým kuchyňským koutem, koupelna se sprchovým koutem a toaletou, technická místnost, ideální kombinace pro kancelářské, poradenské či kreativní využití s případným zázemím pro bydlení Lokalita, která pracuje za vás Budova se nachází přímo v centru města, naproti divadlu, na hlavní tepně s vysokou frekvencí chodců i automobilové dopravy – ideální místo pro setkávání s klienty. Stav budovy a služby - reprezentativní nemovitost ve velmi dobrém stavu - pravidelně udržovaná a rekonstruovaná - veškerý provoz zajišťuje správce budovy - možnost vyhrazeného parkovacího místa přímo u domu Informace k nabízeným prostorům - 2 místnosti jsou klimatizovány - prostory (jsou vedeny jako samostatná nebytová jednotka) mají vlastní hlavní elektroměr - jsou osazeny podružnými měřidly s dálkovým odečtem vodoměru i tepelných indikátorů - teplo je řízeno termostaty v jednotlivých místnostech - radiátory jsou osazeny elektronickými hlavicemi s účelem optimalizace nákladů na vytápění (mobilní aplikace pro automatické či ruční nastaveni teploty) Finanční podmínky nájemné: 24.900,- Kč + DPH/měsíc (při uzavření 3leté smlouvy po dobu prvního roku), další období 29.900,- Kč + DPH/měsíc zálohy na služby: 2.800 Kč + DPH (teplo, vodné, stočné, spol. elektřina aj.) elektřina: vlastní spotřeba – samostatné měření kauce: 1× měsíční nájem parkování: 2 měsíce zdarma vyhrazené parkovací místo přímo u domu (při uzavření 3leté smlouvy), následně za cenu 2.480,- Kč + DPH provize: neplatíte provizi RK Prostory jsou vhodné pro plátce DPH. Jedná se o jednu z nejvýznamnějších funkcionalistických staveb nebaťovské architektury, jejímž autorem je ak. arch. Miroslav Lorenc, projektant budov pro Tomáše Baťu. Tato nabídka kombinuje prestižní adresu, komfort a flexibilitu – ideální pro vaše podnikání. Pro více informací nebo sjednání prohlídky kontaktujte realitní kancelář.


