Prodej - dům/vila, 207 m²
Prodej novostavby rodinného 5+KK s garáží na Zlínských Pasekách
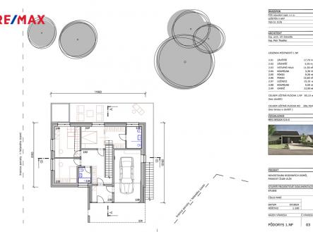
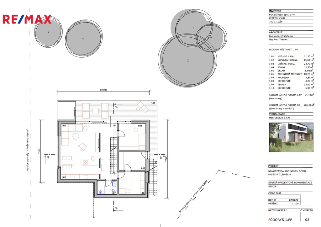
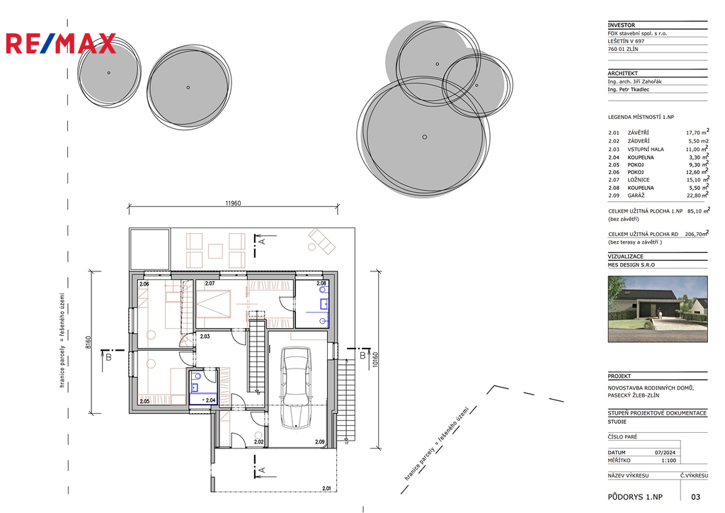
Exkluzivně Vám nabízíme k prodeji novostavbu rodinného domu na Zlínských Pasekách v rámci projektu výstavby 4 domů na klíč na ulici Pasecký žleb. Stavební povolení nabylo právní moci a výstavba započala v 06/2025. Vlastní dispozice domu je řešena ve dvou podlažích. Do domu se vstupuje na úrovni 1.NP. Ve vazbě na krytý vstup jsou řešena venkovní stání pro dvě auta a jedno v garáži. Nad garáží je velký úložný prostor. Na tomto vstupním patře je dále předsíň se vstupem do garáže , chodba se schodištěm do přízemí , dětský pokoj , dětský pokoj se schodištěm do podkrovní místnosti ( herny ) , koupelna s toaletou pro děti , majitelská ložnice se šatnou a samostatnou koupelnou. V přízemí se nachází samostatný pokoj ( třetí dětský či hostovský pokoj , pracovna ) , hlavní obytná místnost , koupelna s toaletou, technická místnost s prádelnou a sklad se vstupem také z venku. Velmi rád Vám poskytnu více informací. Můžete se na mne kdykoliv obrátit.


