Prodej - dům/vila, 225 m²
Prodej novostavby 5+KK na Zlínských Pasekách
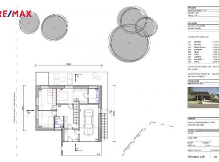
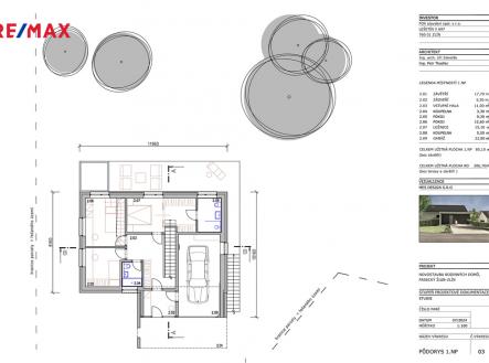
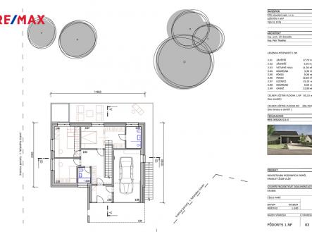
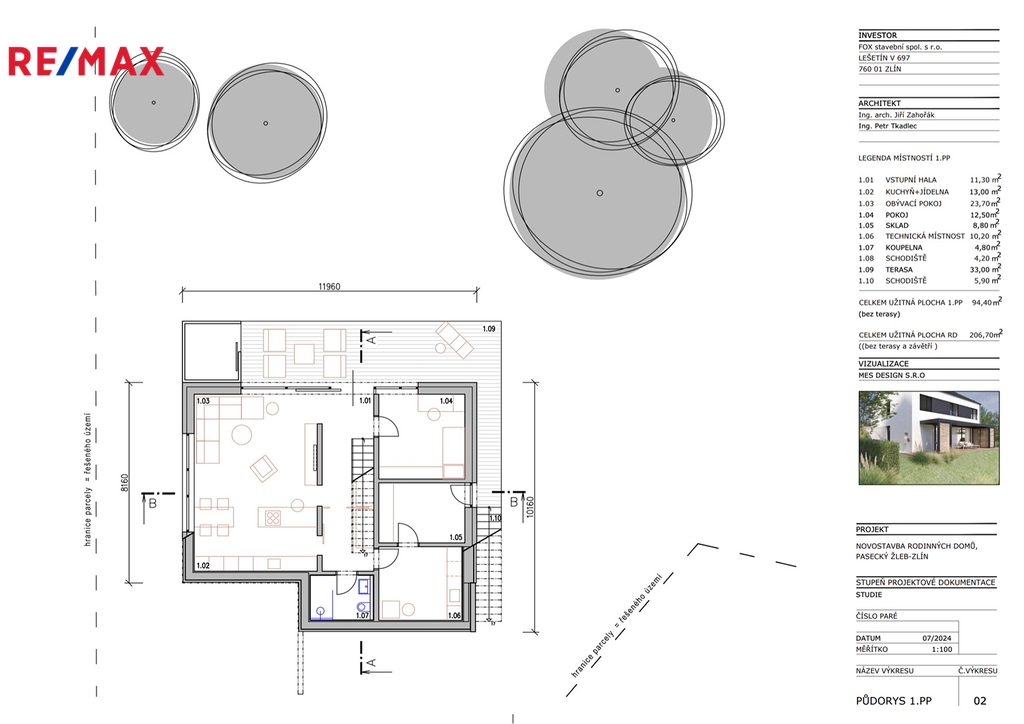
Exkluzivně Vám nabízíme k prodeji novostavbu rodinného domu na Zlínských Pasekách v rámci projektu výstavby 4 domů na ulici Pasecký žleb. Nastěhování je možné od září 2026. Vlastní dispozice domu je řešena ve dvou podlažích. Do domu se vstupuje na úrovni 1.NP. Ve vazbě na krytý vstup jsou řešena venkovní stání pro dvě auta a jedno v garáži. Nad garáží je velký úložný prostor. Na tomto vstupním patře je dále předsíň se vstupem do garáže , chodba se schodištěm do přízemí , dětský pokoj , dětský pokoj se schodištěm do podkrovní místnosti ( herny ) , koupelna s toaletou pro děti , majitelská ložnice se šatnou a samostatnou koupelnou. V přízemí se nachází samostatný pokoj ( třetí dětský či hostovský pokoj , pracovna ) , hlavní obytná místnost , koupelna s toaletou, technická místnost s prádelnou a sklad se vstupem také z venku. Velmi rád Vám poskytnu více informací. Můžete se na mne kdykoliv obrátit. Prodávající si vyhrazuje právo vybrat kupujícího na základě jím zvolených kritérií.


