Prodej bytu, 3+1, 65 m²
Prodej bytu 3+1 65 m²
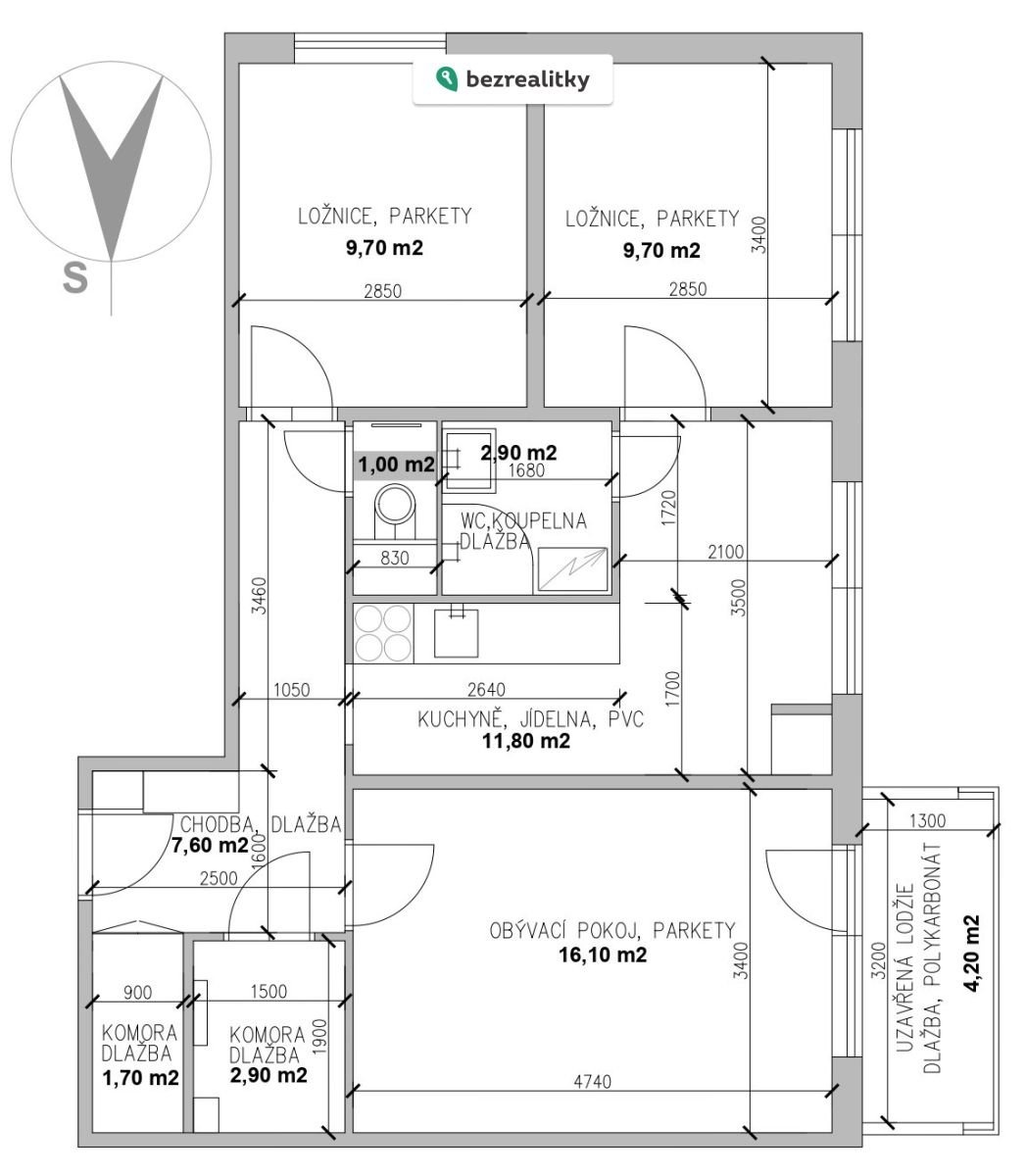
K prodeji nabízíme světlý byt 3+1 o podlahové ploše 65 m² s uzavřenou lodžií 4,2 m² a sklepem 2 m² v oblíbené zlínské lokalitě Podhoří. Byt se nachází ve 13. patře panelového domu s výtahem a díky jihozápadní orientaci nabízí dostatek denního světla a velmi příjemný výhled na Zlín a okolní krajinu. Byt je v udržovaném stavu, s rekonstruovaným zděným jádrem (koupelna a samostatné WC jsou po rekonstrukci – obklady, dlažba, sprchový kout, umyvadlová skříňka), ostatní části bytu jsou vhodné k modernizaci podle vkusu nového majitele. Díky tomu je možné byt přetvořit přesně podle vlastních představ. Mezi přednosti patří uzavíratelná lodžie o rozloze 4,2 m², která dodá prostoru svěžest a možnost relaxace a sklep o ploše 2 m², který je ideální pro uložení sezónních věcí či sportovních potřeb. V obytných místnostech jsou původní dřevěné parkety, v předsíni a sanitě keramická dlažba, v kuchyni pvc. V bytě jsou plastová okna, topení je centrální dálkové. Vaření na plynu. Bytový dům je zateplený. Parkování je zajištěno před domem, což výrazně usnadňuje každodenní pohodlí a mobilitu. Nemovitost se prodává v osobním vlastnictví. Energetický štítek budovy má hodnotu G (bude upřesněno). Náklady na bydlení: měsíční zálohy do SVJ činní cca 4.100 Kč (správa domu, fond oprav, teplo, teplá a studená voda, společná elektřina, služby správce) zálohy na elektřinu a plyn jsou nyní nastaveny cca 800 Kč/měsíc (byt je v současné době neobývaný) Lokalita Podhoří patří mezi vyhledávané části Zlína díky kompletní občanské vybavenosti v docházkové vzdálenosti: zastávky MHD základní škola a mateřská škola potraviny a další obchody a služby lékaři, pošta, sportoviště dětská hřiště a zeleň v okolí domu Dobrá dostupnost centra Zlína i napojení na hlavní tahy dělá z bytu vhodnou volbu jak pro rodinné bydlení, tak jako investici k pronájmu. Pokud Vás nabídka zaujala, kontaktujte mě prosím skrze zprávy či komunikační platformu. Tato nemovitost je určena výhradně přímým zájemcům o koupi. Na inzerát můžete také reagovat přímo na webu Bezrealitky: https://www.bezrealitky.cz/nemovitosti-byty-domy/972681-nabidka-prodej-bytu-k-svetle-zlin


