Prodej bytu, 1+kk, 47 m²
Prodej byt 1+kk, 47㎡
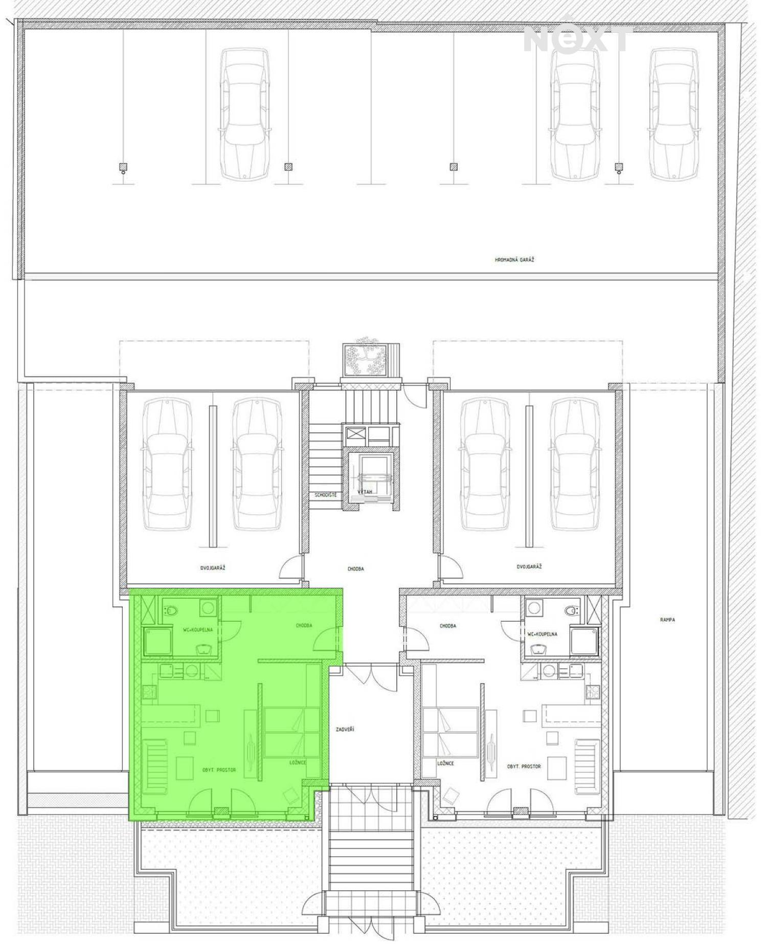
Prodej bytu 1+kk 47 m², Zlín – Rezidence Lešetín I. | centrum města | novostavba | parkování a sklep v ceně, výtah Nabízíme k prodeji byt o dispozici 1+kk a podlahové ploše 47 m², který vznikne v rámci nového rezidenčního projektu v samotném centru Zlína – lokalita Lešetín. Bytová jednotka bude umístěna v 1. nadzemním podlaží novostavby a je navržena jako moderní otevřený obytný prostor s kuchyňským koutem, s důrazem na funkčnost, vzdušnost a komfort současného bydlení. Projekt je aktuálně ve fázi přípravy/výstavby, dokončení je plánováno dle harmonogramu developera ve druhé polovině r. 2028. Základní informace: dispozice: 1+kk podlahová plocha: 47 m² podlaží: 1. NP parkovací stání v ceně sklepní kóje v ceně Lokalita: Lešetín představuje jednu z nejatraktivnějších částí Zlína, situovanou přímo v centru města. Lokalita nabízí výjimečnou kombinaci městského života a pohodlí – v docházkové vzdálenosti se nachází kompletní občanská vybavenost, restaurace, kavárny, obchody i zastávky MHD. Další informace: Byt je ideální volbou jak pro vlastní bydlení, tak jako investice s potenciálem stabilního výnosu. Výhodou je možnost pořízení nemovitosti v rané fázi projektu a její budoucí zhodnocení. Pro více informací o projektu buildquote a volných bytech, standardech provedení a termínu dokončení kontaktujte realitního makléře. Pro komunikaci uvádějte evidenční číslo zakázky N117385.


