Prodej - dům/vila, 162 m²
Prodej rodinného domu 4+2 - 162 m2, pozemek 2031 m2, Žleby u Čáslavi
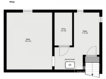
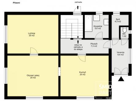
Exkluzivně Vám nabízím dům, který si můžete upravit přesně podle svých představ. Dům v klidné části obce Žleby, který se vyznačuje svým prostorem a možností dvougeneračního bydlení. V obci nedaleko od Čáslavi na Vás čeká dům, který má opravdu co nabídnout. Dvě bytové jednotky v přízemí a v patře, kde každá je s dispozicí 2+1 a umožňuje tak pohodlné bydlení dvou generací. V obou podlažích najdete obývací pokoj, ložnici, kuchyni s jídelním koutem, koupelnu v přízemí, samostatné WC, spíž a prostornou chodbu. Dispozice obou pater jsou velmi podobné a nabízí dostatek prostoru i soukromí. V patře pak bude možné bez problémů dodělat i koupelnu.Ohledně úložného prostoru lze využít půdní prostor, který se nachází nad celým domem. Dům je i částečně podsklepen a máme zde umístěn nový plynový kotel, kterým je dům vytápěn. Samostatnou součástí je pak garáž a hospodářské přístavky, které využijete jako dílnu, sklad nebo pro podnikání. V rozlehlé zahradě najdete sklep na ovoce, udírnu a příjemné posezení pod dřevěným altánem. Dům ze 70-tých let byl průběžně udržován a poslední akcí bylo nové ústřední vytápění. Každopádně je v původním stavu,ale nabízí však poctivý základ s klasickým členěním místností. Rozlehlá zahrada se vzrostlými stromy pak vytváří příjemnou atmosféru pro posezení v altánu a případné i osvěžení v bazénu v horkých letních dnech. Lokalita Žleby u Čáslavi je ideální pro ty, kdo chtějí být v blízkosti města, ale zároveň si užívat klid venkova. V obci je základní občanská vybavenost, mateřská škola, základní škola a do Čáslavi se dostanete autem během několika minut. Pro další informace či sjednání prohlídky mě neváhejte kontaktovat.


