Prodej - dům/vila, 100 m²
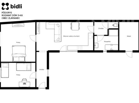
Rodinný dům 3+kk, UP 100 m2, CP 509 m2, obec Zlámanec
Nabízím k prodeji krajní řadový rodinný dům / chalupu o dispozici 3+kk v obci Zlámanec u Uherského Hradiště. Nemovitost je určena k rekonstrukci či přestavbě s možností rozšíření užitné plochy. Některé úpravy proběhly již v roce 2017 - elektroinstalace, výměna oken, podlahy s vytápěním pomocí topných podlahových fólií značky Termofol, kuchyně, koupelna. Rekonstrukce však nebyla dokončena a nabízí se tak prostor pro vlastní úpravy dle preferencí nového majitele. Pozemek je orientován západním směrem a nabídne klidné prostředí pro odpočinek, posezení s přáteli apod. Dům je napojen na obecní vodovod, kanalizaci a elektřinu. Vytápění je efektivně řešeno podlahovými fóliemi, ohřev vody zajišťuje elektrický bojler. Zlámanec je příjemná obec v malebné krajině Zlínského kraje, nacházející se přibližně 10 km severozápadně od Uherského Hradiště. Lokalita nabízí klidné bydlení obklopené přírodou, ideální pro rodiny s dětmi nebo pro ty, kteří hledají odpočinek a únik od ruchu města. V obci se nachází základní občanská vybavenost včetně obchodu, mateřské školy, sportovního hřiště a kulturního domu. Okolní příroda nabízí příležitosti pro pěší výlety a cyklistiku. Díky dobré dostupnosti do Uherského Hradiště a blízkých měst je obec Zlámanec vhodnou volbou pro kombinaci klidného venkovského bydlení s výborným spojením do regionálních center.


