Prodej - dům/vila, 201 m²
Prodej Vily 201m2 - Jabloňová, Želešice
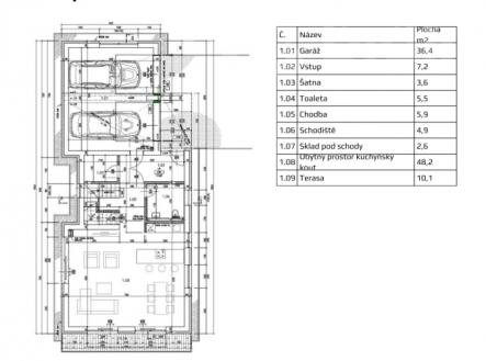
Hledáte bydlení, které kombinuje skutečný komfort, styl a prestiž? V Želešicích se jen výjimečně objeví dům, který nabídne víc než běžná novostavba - a právě tato vila mezi takové patří. O moderní domy v této části obce je dlouhodobě velký zájem. Tato rezidence vyčnívá už na první pohled. Přináší větší samostatný pozemek, individuální architekturu, nadstandardní prostor, výjimečnou míru soukromí a moderní technologie, které u typové výstavby obvykle nenajdete. Otevřenější řešení dispozic, mimořádně prostorná obytná část a maximální prosvětlení interiéru posouvají komfort bydlení na vysokou úroveň. Výraznou výhodou je i možnost dokončení interiéru přesně podle vlastního vkusu - zatímco jiné domy jsou prodávány v jednotné podobě bez možnosti zásadních úprav. Tato vila tak poskytuje jedinečnou kombinaci exkluzivity a individuality. Umístění v okrajové části nové zástavby nabízí harmonii, pohodlí a soukromí, přičemž do Brna je to stále jen pár minut. Dispozice 5+kk je navržena tak, aby interiér působil vzdušně, funkčně a příjemně. Přízemí tvoří velkorysá dvojgaráž se dvěma samostatnými vraty, sklad, vstupní hala, koupelna s WC a opravdu rozsáhlý obývací prostor s kuchyňským koutem a vstupy na zahradu a budoucí terasu. V patře se nachází tři prostorné pokoje, hlavní ložnice se šatnou, 2 koupelny, terasa a balkon s krásnými výhledy do okolí. Velká okna propouštějí maximum denního světla a podtrhují atmosféru moderního, klidného bydlení. Součástí domu je inteligentní systém Loxone, který ovládá osvětlení, vytápění, zabezpečení a další technologie, díky čemuž nabízí vysoký komfort i maximální bezpečí. Želešice leží v malebném údolí Bobravy, jen 7 kilometrů od Brna. Do centra dojedete za zhruba 15 minut, do Olympie přibližně za 8 min a rychlé napojení je i na dálnici. V obci najdete kompletní občanskou vybavenost a okolní příroda nabízí množství cyklotras a tras pro volnočasové aktivity. Zaujala Vás tato nemovitost? Zavolejte mi pro více informací nebo domluvení prohlídky.


