Prodej - pozemek pro bydlení, 677 m²
Stavební pozemek | 677 m2
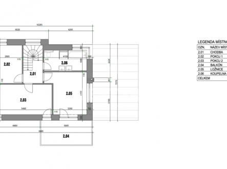
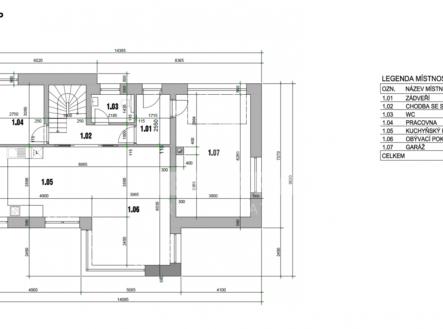
Hledáte příjemné místo pro stavbu svého rodinného domu? Právě ve Zdibech, na dosah Prahy, se nachází krásný rovinatý a slunný pozemek o rozloze 677 m2, který nabízí výjimečnou kombinaci lukrativní lokality, připravenosti k výstavbě a atraktivního okolí. Díky již vydanému stavebnímu povolení můžete svůj plán a vysněný domov začít realizovat prakticky okamžitě. Možnosti využití a zástavby Podle územního plánu je zde povolena zastavitelnost až 25 % plochy, což umožňuje variabilní řešení – výstavbu samostatného rodinného domu nebo dvojdomu. Vydané stavební povolení výrazně zkracuje dobu přípravy a eliminuje administrativní zdržení, která stavební projekty často provází. Součástí nabídky je také vizualizace a půdorys schváleného domu, jež lze přímo využít, nebo na jeho základě vytvořit vlastní projekt. Samozřejmostí je napojení pozemku na veškeré inženýrské sítě. Strategická poloha Obec Zdiby se nachází na severním okraji Prahy a patří mezi vyhledávané rezidenční lokality. Díky napojení na dálnici D8 a Pražský okruh je zajištěna rychlá dostupnost do centra metropole – autem dorazíte za 15–20 minut. V docházkové vzdálenosti je autobusová zastávka s přímou linkou na metro C – Kobylisy, kam se dostanete přibližně za čtvrt hodiny. Kompletní občanská vybavenost a přírodní zázemí Zdiby vám nabídnou vše, co je pro vase pohodlné rodinné bydlení potřeba: školu, školku, obchody, restaurace, zdravotní služby i sportoviště. Díky blízkosti Prahy je navíc k dispozici i široká městská infrastruktura. Okolí láká k aktivnímu odpočinku – cyklostezky, turistické trasy, příroda podél Vltavy i nedaleké vodní plochy poskytují dostatek prostoru pro sport i relaxaci. Rodiny s dětmi ocení hřiště, zahrady a bohatou nabídku kulturních a společenských aktivit. Výjimečná příležitost Tento pozemek představuje možnost vybudovat si své moderní bydlení v rezidenční čtvrti, v lokalitě, která spojuje klidné prostředí s vynikající dostupností Prahy. Investice do tohoto pozemku znamená jistotu atraktivního bydlení i stabilní hodnotu do budoucna. Pokud byste rádi zrealizovali developerský projekt, majitel nabízí k prodeji také 5 okolních pozemků, což nabízí příležitost vystavět zde menší rezidenční čtvrť. NESTERA vám kromě samotného prodeje zajistí i nejvýhodnější financování projektu a nabídne následnou správu či pronájem nemovitostí. Poskytujeme komplexní finanční služby – od pojištění přes investice až po individuální finanční analýzu, jejímž výsledkem je unikátní životní plán prosperity. Pro více informací a sjednání osobní schůzky kontaktujte tým NESTERA.


