Prodej - pozemek pro bydlení, 4 101 m²
Soubor 6 stavebních pozemků | 4.101 m2
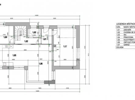
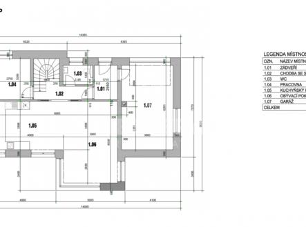
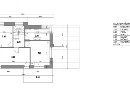
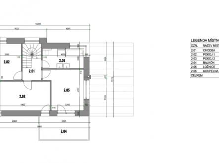
Hledáte ideální místo pro realizaci developerského projektu? Právě ve Zdibech, na dosah Prahy, se nachází soubor pozemků, který nabízí výjimečnou kombinaci skvělé polohy, připravenosti k výstavbě a atraktivního okolí. Díky vydanému stavebnímu povolení můžete svůj plán začít uskutečňovat prakticky okamžitě. Aktuálně je v nabídce soubor šesti rovinatých pozemků o celkové výměře 4.101 m²: • parc. č. 102/51 – 667 m² • parc. č. 102/52 – 675 m² • parc. č. 102/53 – 677 m² • parc. č. 102/54 – 720 m² • parc. č. 102/56 – 689 m² • parc. č. 102/57 – 673 m² Možnosti využití a zástavby Podle územního plánu je povolena zastavitelnost až 25 % plochy, což umožňuje variabilní řešení – od samostatných rodinných domů až po dvojdomy. Vydané stavební povolení výrazně zkracuje dobu přípravy a eliminuje administrativní zdržení, která developerské projekty často provází. Součástí nabídky jsou také vizualizace a půdorysy schválených domů, jež lze přímo využít, nebo na jejich základě vytvořit vlastní projekt. Strategická poloha Obec Zdiby se nachází na severním okraji Prahy a patří mezi vyhledávané rezidenční lokality. Díky napojení na dálnici D8 a Pražský okruh je zajištěna rychlá dostupnost do centra metropole – autem dorazíte za 15–20 minut. V docházkové vzdálenosti je autobusová zastávka s přímou linkou na metro C – Kobylisy, kam se dostanete přibližně za čtvrt hodiny. Kompletní občanská vybavenost a přírodní zázemí Zdiby nabízejí vše, co je pro pohodlné bydlení potřeba: školu, školku, obchody, restaurace, zdravotní služby i sportoviště. Díky blízkosti Prahy je navíc k dispozici i široká městská infrastruktura. Okolí láká k aktivnímu odpočinku – cyklostezky, turistické trasy, příroda podél Vltavy i nedaleké vodní plochy poskytují dostatek prostoru pro sport i relaxaci. Rodiny ocení hřiště, zahrady a bohatou nabídku kulturních a společenských aktivit. Výjimečná příležitost Tento projekt představuje jedinečnou možnost vybudovat moderní rezidenční čtvrť v lokalitě, která spojuje klidné prostředí s vynikající dostupností Prahy. Investice do těchto pozemků znamená jistotu atraktivního bydlení pro budoucí rezidenty i stabilní hodnotu do budoucna. Komplexní servis NESTERA NESTERA vám kromě samotného prodeje zajistí i nejvýhodnější financování projektu a nabídne následnou správu či pronájem nemovitostí. Poskytujeme komplexní finanční služby – od pojištění přes investice až po individuální finanční analýzu, jejímž výsledkem je unikátní životní plán prosperity. Pro více informací a sjednání osobní schůzky kontaktujte tým NESTERA.


