Prodej bytu, 2+1, 65 m²
Prodej družstevního bytu 2+1 (55m2) ve Žďáru nad Sázavou, 3.NP, dva sklepy
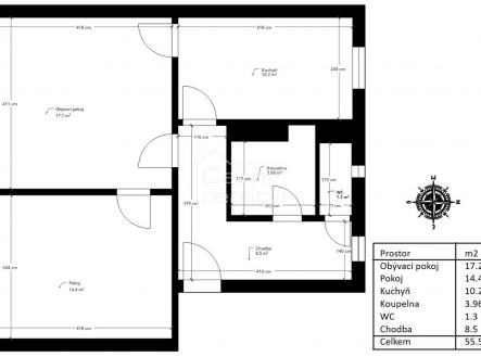
Prodej družstevního bytu 2+1 (55m2) ve Žďáru nad Sázavou, ve 3.NP, dva sklepy. Na adrese Brodská 2005/75, Žďár nad Sázavou. Byt se nachází v kompletně revitalizovaném domě, tzn. dům je zateplen, v bytě jsou osazena plastová okna s izolačním dvojsklem. Jinak je bytová jednotka v původnějším stavu. Dispozice: vstupní chodba s oknem na sever, o ploše 8,7 m2, koupelna s vanou 3,6 m2, toaleta s oknem 1,4 m2, kuchyň je otočena na severní stranu 10,3 m2, obývací pokoj na jih 17,2 m2, další pokoj na jižní stranu 14,4 m2. V přízemí domu náleží k bytové jednotce dva sklepy, o plochách 5,2 m2 a 4,3 m2. Užitná plocha bytu je 55,5 m2. Celková plocha bytu vč.sklepů je 65 m2. Parkování je možné před objektem. V obci je veškerá občanská vybavenost. Náklady na bydlení jsou 5186,-Kc. (z toho fond 1.105,-Kč) + elektřina 760,-Kč. ID 7525.


