Prodej - pozemek pro bydlení, 351 m²
Pozemek k bydlení s projektovou dokumentací
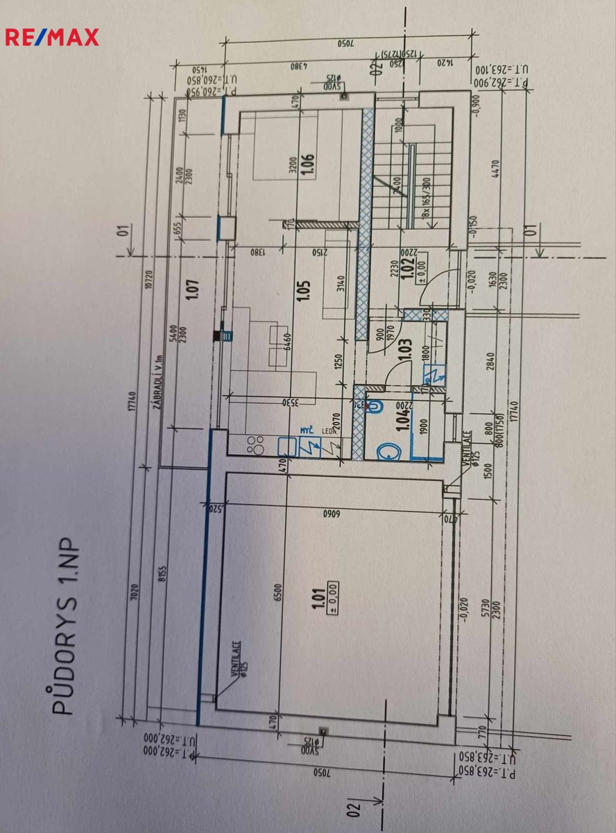
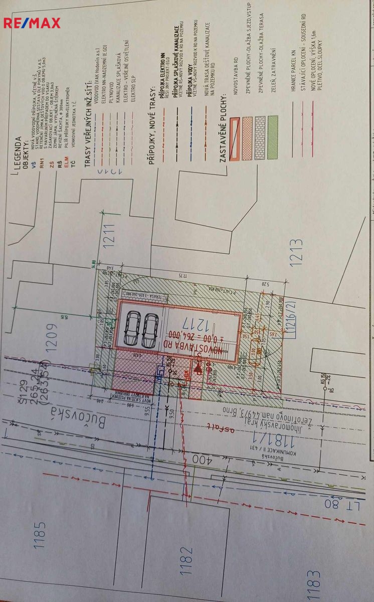
Ve výhradním zastoupení nabízíme zprostředkování prodeje pozemku v obci Ždánice o velikosti 351m2. Současně s pozemkem nabízíme zpracovanou kompletní projektovou dokumentaci a vydané stavební povolení. Projekt zahrnuje stavbu vícegeneračního rodinného domu, zastavěná plocha domu 125m2, půdorys je obdélníkového tvaru, 1. PP, 1. NP + 2. NP. Rozměr domu 7,1 x 17,7m. Napojení na IS: vodovod, elektro NN, kanalizace jsou v komunikaci připraveny. Dům je standardně řešen, vstupuje se v úrovni 1. NP, kde je kuchyně s obývacím pokojem, pokoj, koupelna, předsíň, balkon, chodba a schodiště a garáž. V 2. NP se nachází dva pokoje, pracovna, koupelna, kuchyně s obývacím pokojem, koupelna, WC, předsíň, balkon. V suterénu jsou umístěny: dvě technické místnosti, dvě pracovny, koupelna, WC, černá kuchyň, chodba, komora, terasa. Pozemek se nachází v lokalitě, která má již vybudovanou veškerou technickou i dopravní infrastrukturu. Město Ždánice leží na okraji Ždánického lesa. Má velmi dobrou dopravní dostupnost (Brno, Slavkov u Brna, Kyjov, Hodonín) a výbornou občanskou vybavenost (základní škola, školka, dům dětí a mládeže, praktičtí i zubní lékaři, sportovní vyžití, koupaliště, rybníky, restaurace, nákupní možnosti). Pro podrobnější informace, náhled do stavební dokumentace apod., neváhejte kontaktovat makléře zakázky. Zajišťujeme finanční poradenství.


