Prodej bytu, 2+kk, 63 m²
Prodej byty 2+kk, 55 m² Zbraslav
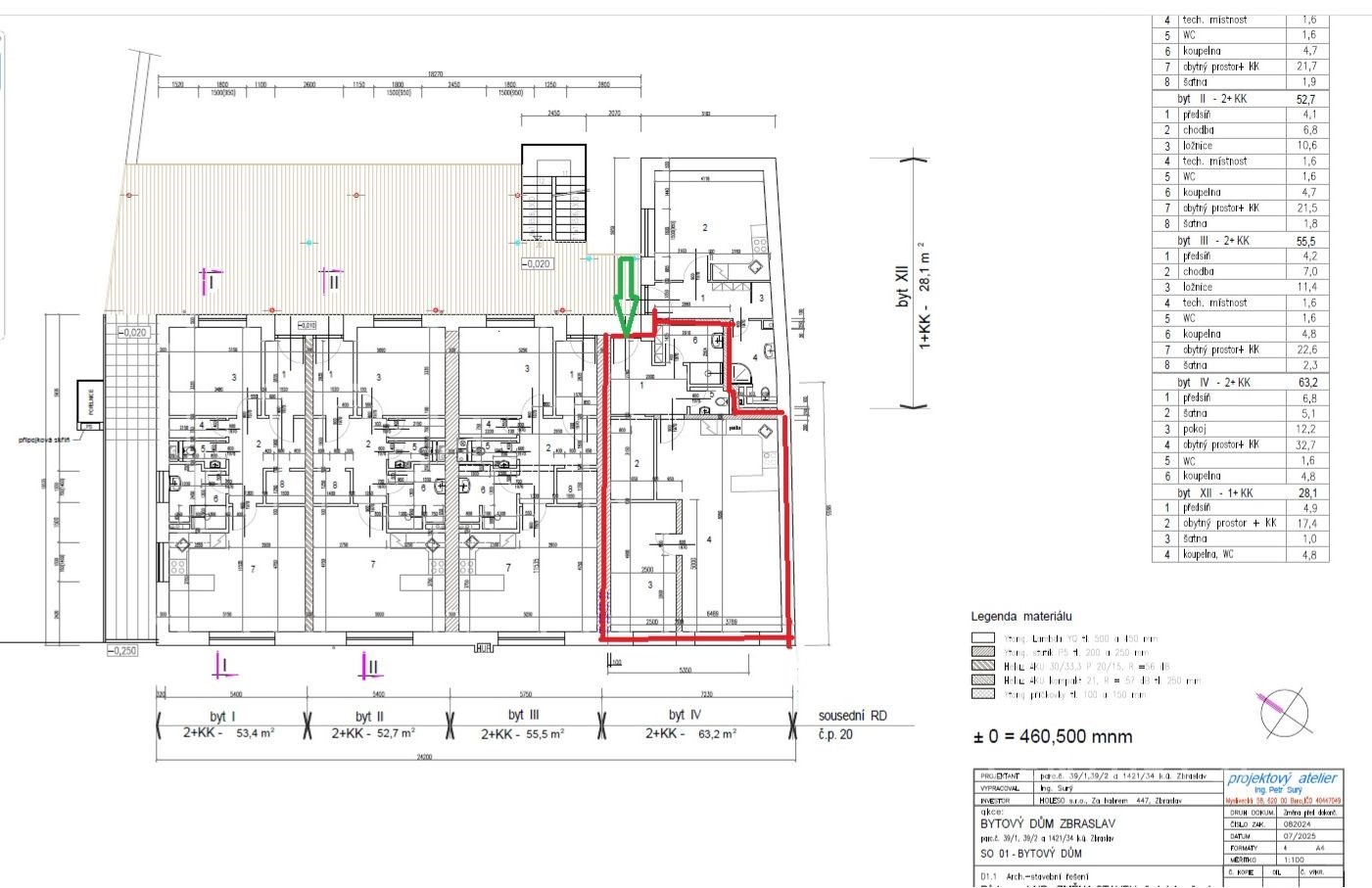
Byt 2+kk ve Zbraslavi u Brna! Nabízíme k prodeji byt 2+kk o výměře 63,2 m2, v moderní novostavbě ve Zbraslavi u Brna. Ke každému bytu náleží sklepní kóje a je zde možnost dokoupit vlastní parkovací stání přímo v areálu rezidence vybavené přípravou na nabíjecí stanici pro elektromobil. Výstavba projektu probíhá dle harmonogramu – aktuálně je bytový dům zastřešen, okna jsou osazena a dokončují se vnitřní omítky. Kolaudace je plánována na jaro 2026, předání bytu bude včetně finálních povrchů podlah, interiérových dveří, sanitárního vybavení a přípravy na kuchyňskou linku. Ještě posledních pár týdnů máte možnost výběru dekorů z kvalitních standardů. K dispozici je ještě i poslední bytová jednotka 2+kk o výměře 54,6 m2. Dům spadá do energeticky úsporné třídy B – bude zde kvalitní zateplení střechy minerální vlnou, okna s izolačními trojskly, venkovní žaluzie, fotovoltaické solární panely na střeše apod. To vše zaručuje velmi nízké provozní náklady. Jako příjemný bonus je pro rezidenty zajištěna možnost pronájmu zahrádky v blízké obecní zahrádkářské kolonii. Bytový dům se nachází přímo v centru obce, v pěší dostupnosti obecního úřadu, pošty, lékárny, mateřské i základní školy. V obci dále najdete praktického lékaře, zubaře, obchody, restauraci, kulturní dům, knihovnu a další občanskou vybavenost. Zastávka autobusu je jen 50 metrů od domu, cyklostezka cca 150 metrů. Výborná dostupnost na dálnici D1 zajišťuje rychlé spojení s Brnem i okolím. Tento architektonicky zdařilý projekt přináší ideální spojení klidného bydlení, výborné dostupnosti a moderního standardu za velmi příznivou cenu. Pro více informací kontaktujte realitní makléřku. Ráda vám poskytne podrobné informace i nabídne možnost výhodného financování s naší odbornou hypoteční specialistkou.


