Prodej - dům/vila, 235 m²
Prodej domu 235 m², pozemek 869 m²
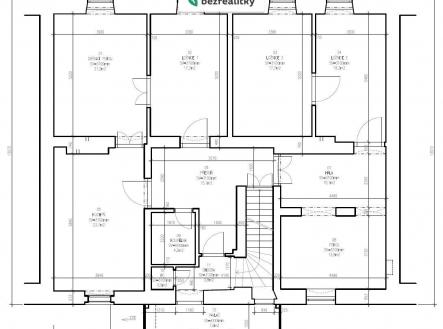
Nabízíme prodej domu v centru Zbiroha s velikou uzavřenou zahradou. V přízemí se nachází dva samostatné prodejní prostory. Jedná se o prodejnu sklenářství (52 m2) a prodejnu elektro+voda (39 m2), která je momentálně volná k pronájmu. V přízemí domu se nachází průjezd o šířce 3,2 m, kam je možné bez problému vjet osobním automobilem. V patře se nachází 6 velkých obytných místností, koupelna, samostatné WC, předsíň a pavlač. Vysoké stropy 3,1 m. Z předsíně je vstup na schodiště vedoucí na půdu, která je prázdná, nevyužitá. Dům má novou střešní krytinu. Vytápění domu je zajištěno kamny v jednotlivých místnostech. Na zahradě je samostatný domek, využitelný např. jako dílna, a dále 5 zděných kůlen. Využitelné plochy jsou následující: Přízemí: celková plocha místností 91 m2, + plocha průjezdu: 40 m2. Patro: celková plocha místností: 144 m2, + pavlač 7,6 m2 + schodiště cca 10 m2. Rozlehlý půdní prostor o ploše cca 165 m2. Sklep: kamenný, 23,5 m2. Na zahradě: samostatný domek o užitné ploše cca 20 m2, kůlny cca 35 m2 Nemovitost je vhodná k rekonstrukci, například s možností realizace dvou velkých bytů v patře. Nemovitost se nachází na rozlehlém pozemku o velikosti 869 m2, který nabízí soukromí a dostatek prostoru pro další úpravy dle vašich představ. Krásná a klidná lokalita s vynikající dojezdovostí do Prahy (30 min, 50 km) nebo Plzně (25 min, 35 km) po D5. Pro více informací a sjednání prohlídky mě neváhejte kontaktovat. Cena k jednání. Realitní kanceláře a realitní agenti prosím nevolejte. Tato nemovitost je určena výhradně přímým zájemcům o koupi. Na inzerát můžete také reagovat přímo na webu Bezrealitky: https://www.bezrealitky.cz/nemovitosti-byty-domy/974072-nabidka-prodej-domu-masarykovo-namesti-zbiroh


