Prodej - dům/vila, 1 350 m²
Prodej domu a bytového domu v Žatci
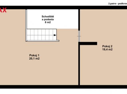
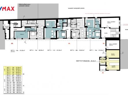
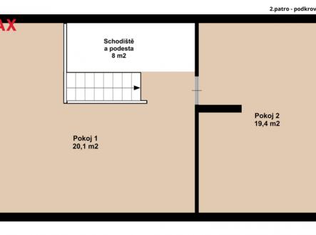
Jste investor a hledáte ideální příležitost na TOP adrese v Žatci? Dovolte mi Vám představit rodinný dům se třemi jednotkami, které můžete pronajímat, využít je k vlastní podnikatelské činnosti či bydlení + objekt bývalé mechaniky v Žatci, v ulici Václava Brožíka, která nabízí možnost realizace 16ti bytů. INFORMACE K DOMU: Dům prošel kompletní rekonstrukcí včetně zateplení, nové střechy a fasády, což zajišťuje moderní a úsporné bydlení. Je napojen na Žateckou teplárenskou, což přináší nízké provozní náklady. Dispozice domu nabízí široké možnosti využití. V suterénu se nachází kuchyňka, koupelna, WC, dvě místnosti a technické zázemí (vytápění ze Žatecké teplárenské. Přízemí tvoří byt 2+1 se dvěma pokoji, kuchyní, koupelnou s vanou, samostatným WC a spíží. V podkroví je další byt s kuchyní spojenou s obývacím pokojem, WC, koupelnou se sprchovým koutem a dvěma samostatnými místnostmi. K domu náleží také garáž. Díky svému uspořádání je dům vhodný jak pro vícegenerační bydlení, tak i pro kombinaci bydlení s podnikáním. Zároveň můžete jednotky pronajímat jen pronajímat. INFORMACE K BUDOUCÍMU BYTOVÉMU DOMU SE STAVEBNÍM POVOLENÍM NA 16 BYTŮ: Objekt nabízí v současné chvíli 2.NP, příčemž v 1.NP byl využíván k účelům výroby a další prostory sloužily jako garáže, zatímco 2.NP bylo využíváno převážně k potřebám kancelářským. V současné chvíli byl objekt v územním plánu změněn na bytový dům, přičemž součástí prodeje je také projekt společně se stavebním povolením. Projekt počítá s nástavbou 3.NP, jenž poskytne budoucímu majiteli celkem 16 bytových jednotek o dispozicích 1+KK, 2+KK, 2+1 a 3+KK. Výměrou se byty pohybují v rozmezí od 39,9 m2 – 95,2 m2. Celková plocha bytů činí 1000 m2. V 1.NP se počítá s pěti byty o dispozicích – 1+KK, 2+KK, 2+1, 1+KK, 1+KK V 2.NP se počítá se sedmi byty o dispozicích – 3+KK, 1+KK, 1+KK, 3+KK, 2+KK, 1+KK, 1+KK Ve 3.NP se počítá se čtyřmi byty o dispozicích - 3+KK, 3+KK, 2+KK, 3+KK. Z největší bytové jednotky o rozloze 95,2 m2 ve 3.NP je možné vybudovat vstup na terasu s výhledem k okolí. V 1.NP v pravé části budou dále vybudovány dvě společné kolárny a kočárkárny se samostatnými vstupy. Dále se v objektu bude nacházet nebytový prostor se samostatným vstupem z ulice skládající se z prodejny, skladu a toalety. Celková plocha těchto prostor bude činit 55,4 m2. Komerční část a obytná část nebude průchozí. Pro lepší představivost přikládám výkresy jednotlivých nadzemních podlaží z projektové dokumentace, které Vám lépe představí jednotlivá uspořádání bytových jednotek. V projektu je zakomponováno 12 parkovacích stání přímo u domu, přičemž dalších 14 parkovacích stání vznikne v objektu, který se nachází v dochozí vzdálenosti. Bytový dům bude napojen na veškeré inženýrské sítě, přičemž jeho vytápění bude zajištěno dálkovým horkovodem ze Žatecké teplárenské. V případě, že Vás tato nabídka zajímá, zavolejte mi nebo napište a domluvte si proh Prodávající si vyhrazuje právo vybrat kupujícího na základě jím zvolených kritérií.

