Prodej - dům/vila, 115 m²
Prvorepublikový dům se zahradou v Zadní Třebani. Soukromí, klid.
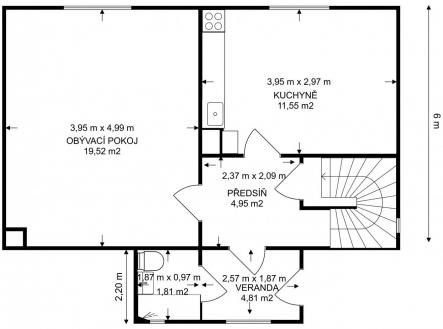
Hledáte místo s atmosférou, s domem pro normálního smrtelníka velký tak akorát? Možná vás zaujme právě tato nemovitost v klidné části Zadní Třebaně, obklopená zelení a chráněná před pohledy z okolí. Na pozemcích o celkové výměře 848 m2 stojí cihlový dům z 30. let minulého století se zastavěnou plochou 64 m2. Ten má dispozici 3+1 + dvě sklepní místnosti, které mohou sloužit jako technické zázemí, dílna nebo ateliér. Dispozici lze snadno upravit na 4+kk. Na pozemku se nachází také zděný přístavek o výměře cca 20 m, který byl užíván jako pergola a sklad zahradního náčiní. Dům (energetická třída G), napojený na obecní vodovod, kanalizaci a plyn v roce 2024 prošel částečnou rekonstrukcí (cca 1,4 mil. kč) - jsou tu nová plastová okna, vchodové dveře, obnovená elektroinstalace, vybudovaná koupelna v 1. NP a samostatné WC v 2. NP, kde jsou také zateplené stropy. Zahrada má výjimečně příjemnou atmosféru. Najdete tu vzrostlou lípu, dub a na hranici pozemku protéká malý potůček. Pozemek s jižní orientací je ze všech stran chráněn zelení před zvědavýma očima sousedů a kolemjdoucích. Příjemným bonusem je i vlastní studna na zalévání. Zadní Třebaň má základní vybavenost: školu, školku (s mnoha kroužky), obchod Coop, dětské hřiště na návsi nebo na ostrově, kde se konají různé koncerty a také je ideálním místem na koupání. Kompletní vybavenost, jako je například supermarket Penny nebo nová sportovní hala, najdete ve 3 km vzdálených Řevnicích. Hlavní devizou Zadní Třebaně je klid a nádherná příroda Brd, takže milovníci procházek nebo cyklistiky si jistě přijdou na své. Do Prahy se dostanete přímým vlakem ze zastávky Zadní Třebaň - za půl hodiny jste na Smíchovském nádraží (2× za hodinu), v opačném směru v Berouně za 15 minut. Hledáte místo s atmosférou, s domem pro normálního smrtelníka velký tak akorát? Možná vás zaujme právě tato nemovitost v klidné části Zadní Třebaně, obklopená zelení a chráněná před pohledy z okolí. Na pozemcích o celkové výměře 848 m2 stojí cihlový dům z 30. let minulého století se zastavěnou plochou 64 m2. Ten má dispozici 3+1 + dvě sklepní místnosti, které mohou sloužit jako technické zázemí, dílna nebo ateliér. Dispozici lze snadno upravit na 4+kk. Na pozemku se nachází také zděný přístavek o výměře cca 20 m, který byl užíván jako pergola a sklad zahradního náčiní. Dům (energetická třída G), napojený na obecní vodovod, kanalizaci a plyn v roce 2024 prošel částečnou rekonstrukcí (cca 1,4 mil. kč) - jsou tu nová plastová okna, vchodové dveře, obnovená elektroinstalace, vybudovaná koupelna v 1. NP a samostatné WC v 2. NP, kde jsou také zateplené stropy. Zahrada má výjimečně příjemnou atmosféru. Najdete tu vzrostlou lípu, dub a na hranici pozemku protéká malý potůček. Pozemek s jižní orientací je ze všech stran chráněn zelení před zvědavýma očima sousedů a kolemjdoucích. Příjemným bonusem je i vlastní studna na zalévání. Zadní Třebaň má základní vybavenost: školu, školku (s mnoha kroužky), obchod Coop, dětské hřiště na návsi nebo na ostrově, kde se konají různé koncerty a také je ideálním místem na koupání. Kompletní vybavenost, jako je například supermarket Penny nebo nová sportovní hala, najdete ve 3 km vzdálených Řevnicích. Hlavní devizou Zadní Třebaně je klid a nádherná příroda Brd, takže milovníci procházek nebo cyklistiky si jistě přijdou na své. Do Prahy se dostanete přímým vlakem ze zastávky Zadní Třebaň - za půl hodiny jste na Smíchovském nádraží (2× za hodinu), v opačném směru v Berouně za 15 minut. Více informací o domě včetně odhadovaných nákladů na provoz, plánků a technických detailů najdete na naší webové stránce v sekci projekty (rdtreban). A pokud vás dům zaujal, rád vás přivítám na osobní prohlídce. Jen prosím vezměte na vědomí, že do 14.12. budu mimo ČR, tedy nejdřívější termín prohlídky mohu nabídnout v úterý 16.12. od 12. hod. dále. Také prosím o kontakt emailem, v průběhu 2-3 dnů odpovím každému. Děkuji za pochopení. O.Valoušek

