Prodej - dům/vila, 130 m²
Dům se zahradou a garáží, 794m2, Zábřeh
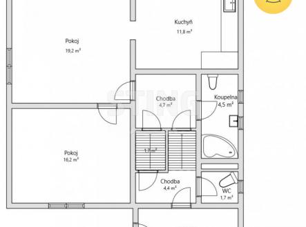
Rodinný dům se zahradou v Zábřehu na Moravě – klid, prostor a potenciál Nabízíme ke koupi prostorný rodinný dům o dispozici 4+1, který prošel částečnou rekonstrukcí v roce 2024. Nachází se v klidné části Zábřehu na Moravě, na okraji obce, ideální pro rodinné bydlení s dětmi. Součástí domu je udržovaná zahrada o výměře 500 m² s možností výstavby dalšího domu – s vlastním přístupem z ulice. Zahrada je osazena vzrostlými ovocnými stromy, najdete zde také skleník, dílnu a vlastní kopanou studnu. K dispozici je garáž (18 m²), která zajišťuje pohodlné parkování i prostor pro skladování. Dům má ideální dispozici pro rodinné bydlení a nabízí dostatek prostoru jak uvnitř, tak venku. Nemovitost je připravená k okamžitému užívání, zároveň však nabízí možnost dalšího rozvoje nebo úprav podle vlastních představ.


