Prodej - dům/vila, 130 m²
Dům se zahradkou a garáží, 326m2, Zábřeh
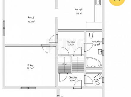
Rodinný dům se zahradou v Zábřehu na Moravě – klid, prostor a potenciál Nabízíme ke koupi prostorný rodinný dům o dispozici 4+1, který prošel částečnou rekonstrukcí v roce 2024. Nachází se v klidné části Zábřehu na Moravě, na okraji obce, ideální pro rodinné bydlení s dětmi. Součástí domu je udržovaná zahradka kolem domu K dispozici je garáž (18 m²), která zajišťuje pohodlné parkování i prostor pro skladování. Dům má ideální dispozici pro rodinné bydlení a nabízí dostatek prostoru. Nemovitost je připravená k okamžitému užívání, zároveň však nabízí možnost dalšího rozvoje nebo úprav podle vlastních představ. Do konce března 2026 nabízíme prostřednictvím našeho partnera úrokové sazby od 4,29 % p.a. Více informací Vám sdělí náš specialista na prohlídce.


