Prodej - dům/vila, 385 m²
Prostorný dům na prodej v Dębowiec - ideální poloha blízko Těšína!
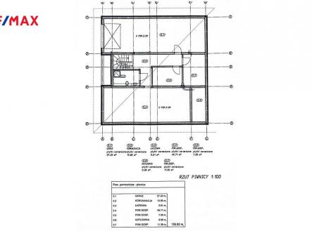
Tento prostorný, plně podsklepený jednopodlažní dům v Rajské ulici je volbou pro ty, kteří oceňují klid a modernost v jednom. Vlastnosti nemovitosti: - Plocha přízemí: 145,32 m² - Plocha suterénu: 153,93 m² - Celková plocha: 385,9 m² Dům je v nejmodernějším developerském standardu, který vám poskytne komfort a pohodlí, které od dobrodruha očekáváte. Vyrobeno s velkou péčí o vysokou kvalitu a funkčnost. Moderní vybavení: - Tepelné čerpadlo Panasonic 12 kW - Mechanická čistička odpadních vod - Rekuperace vzduchu - Keramická střešní taška Roben Monza Plus Anthracite - Bezspárové dveře Erkado do sklepa a moderní okna Veka - Pěnový polystyren 20 cm - Venkovní žaluzie na všech oknech - Připravená instalace pro: interkom, monitoring, fotovoltaika. - Okna Veka hliník HST+fix - Hliníkové vchodové dveře - Vinylové panely Quick Step Pro více informací nebo domluvení prohlídky mne neváhejte kontaktovat. Všem makléřům nabízíme spolupráci.


