Prodej - nájemní dům, 260 m²
Prodej domu se 4 byty a garážemi
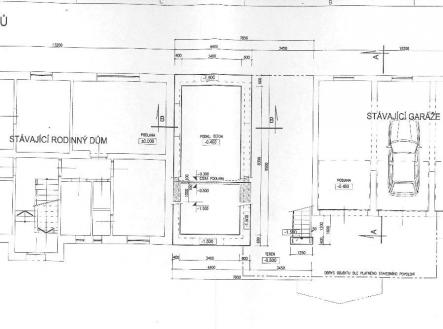
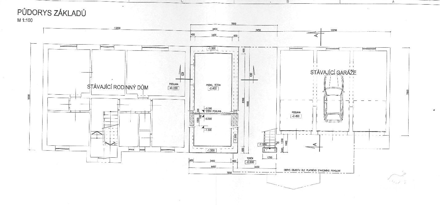
Představuji k prodeji dům se 4 byty a další budovu s garážemi na pozemku o celkové rozloze 1783 m2 v na adrese K Silu 40, Kuchař. Podívejte se na samostatnou stránku nemovitosti odkaz ve videoprohlídce. Obec Kuchař se nachází 10 min jízdy jihozápadně od Prahy a 10 min jízdy od Karlštejna, v okrese Beroun, u Vysokého Újezda. Samotný dům je na vlastním oploceném pozemku na okraji obce. Dispozice domu: V domě jsou 4 bytové jednotky. V přízemí: 1+1, 44 m2 3+1, 96 m2 V patře: 2+1, 60 m2 1+1, 44 m2 Byty jsou po rekonstrukci z let 2010 a 2016. Součástí všech bytů je kuchyňská linka se spotřebiči z roku 2016. V domě je velký půdní prostor s možností půdní vestavby a vzniku dalších 1 2 bytů. Na půdu vedou samostatné dveře, je zde vyvedena elektřina, voda, odpady a trubky pro topení. S výstavbou dalšího bytu se při rekonstrukci v roce 2016 počítalo. Dům je částečně podsklepený, sklepní prostory jsou po rekonstrukci. Vedle domu stojí stavba se 3 garážemi s elektrickými vraty a podkrovním prostorem. Tato budova ovšem vykazuje známky poškození. Je tedy možné ji buď opravit a zvětšit, nebo zdemolovat a místo ní postavit novou budovu (sklad, kanceláře, garáže...). STAVEBNÍ POVOLENÍ JE VYDANÉ na budovu o rozměru 11x24 m a do budovy jsou přivedeny přípojky (voda, elektřina, odpad a trubka pro připojení plynu). Současný majitel měl v plánu tuto budovu přestavět na velkou skladovací halu. Vedle této budovy je podzemní sklep o výměře cca 6x3 m. Technické informace: Dům je cihlový, po částečné rekonstrukci. Vytápění je řešeno plynovým kotlem Vaillant, ohřev teplé vody boilerem Vaillant, vyhřívaným plynovým kotlem. V bytech jsou radiátory. V bytě 3+1 jsou navíc umístěná krbová kamna s novým komínem (2024). Elektřina: Sloupek je umístěn na hranici pozemku, je zde zaveden noční proud. V centrálním schodišti je v mezipatře umístěn hlavní elektrický rozvaděč (2016) s podružnými měřiči pro jednotlivé byty, půdu, garáž a společné prostory (chodba, sklepy, venkovní osvětlení). V každém bytě je osazen nový rozvaděč pro jednotlivé okruhy. Kompletní elektroinstalace rekonstruována v roce 2016. Voda, odpady: Celý objekt je napojen na vodovodní řád (VAK Beroun), odpady jsou svedeny do kanalizace. Na pozemku je vlastní studna, ta se však pro občasný nedostatek vody v letních měsících nevyužívá. Čerpadlo ve studni umístěné je. Na pozemku (pod přístavbou) je retenční nádrž o kapacitě cca 30m3. Je do ní svedena dešťová voda slouží jako zásobárna užitkové vody pro zalévání zahrady. Rozvody po celém domě jsou nové v plastu (2010 2016). Každý byt je vybaven měřičem pro studenou i teplou vodu. Právní informace: V bytech bydlí nájemníci s nájemními smlouvami na dobu určitou do 31.8.2026. Na pozemku je zřízeno věcné břemeno pro GasNet z důvodu provozování plynové přípojky. Dům je možné financovat hypotečním úvěrem, který zajistíme. Uvedené výměry jsou orientační. PENB je v přípravě, proto uvádíme třídu G.


