Pronájem - dům/vila, 196 m²
Pronájem rodinného domu, 196 m², Vysokov
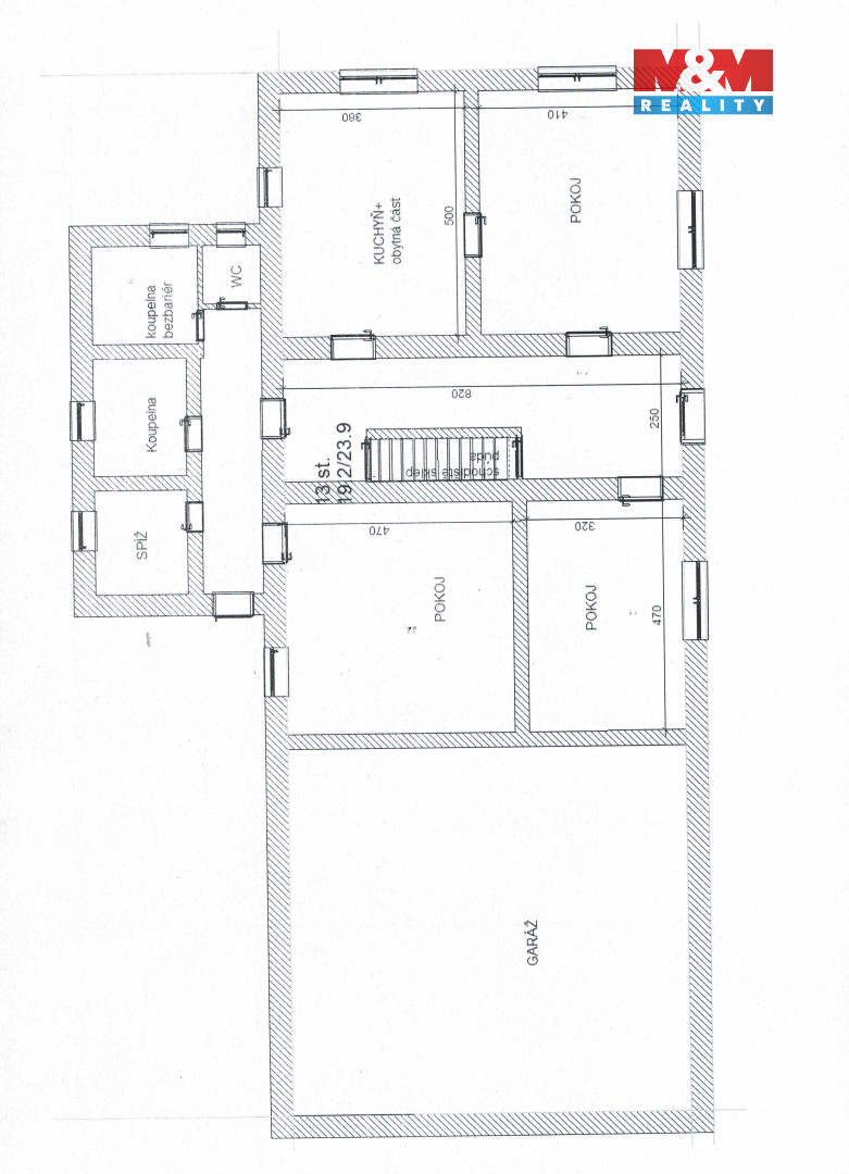
Nabízíme pronájem prostorného rodinného domu v klidné části obce Vysokov, Náchod. Tento samostatný cihlový dům o užitné ploše 196 m² je ideální pro ubytování 10 až 15 osob, což je ideální pro firmy hledající klidné a pohodlné zázemí pro své zaměstnance. Dům má dvě nadzemní podlaží, jedno podzemní podlaží a celkem pět místností. Nachází se na rozlehlém pozemku o velikosti 1439 m², který zahrnuje zahradu a pergolu pro relaxaci a volnočasové aktivity. Nemovitost je v centru obce, s budoucím obchvatem Náchoda v blízkosti, což zajišťuje výbornou dopravní dostupnost. Neváhejte nás kontaktovat pro více informací či sjednání prohlídky.


