Prodej bytu, 2+1, 58 m²
Prodej bytu 2+1, Na Hraničkách, Vyškov
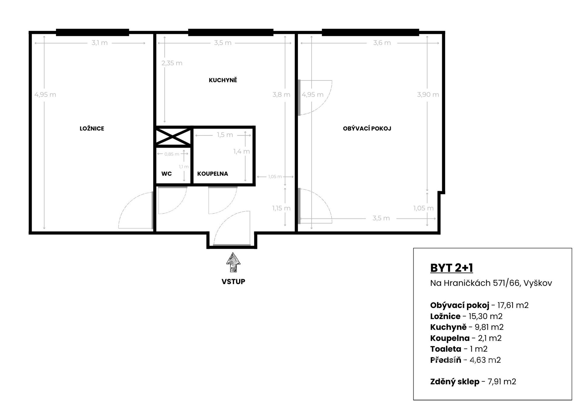
Léty prověřená dispozice, cihlový bytový dům, nízké měsíční náklady a nadstandardní úložný prostor… To jsou hlavní přívlastky, které nejlépe vystihují právě tento byt o dispozici 2+1, který je umístěný v cihlovém bytovém domě na ulici Na Hraničkách ve Vyškově. Byt je umístěn ve třetím nadzemním podlaží (2. patře) z celkem tří nadzemních podlaží bytového domu bez výtahu. Samotný byt disponuje plochou 50,45 m2. K tomu dále patří zděný sklep umístěný v prvním podzemním podlaží s plochou 7,91 m2. Byt je v původním stavu po dílčích modernizacích. Bytové jádro je umakartové. Elektrorozvody, rozvody vody a odpadů v bytě jsou původní. Poslední modernizací v bytě jsou vinylové podlahy, které jsou položeny ve všech místnostech. Navíc je byt opatřen bezpečnostními vstupními dveřmi. Kuchyně je vybavena kuchyňskou linkou s elektrickou varnou deskou, elektrickou troubou a digestoří. Dispozice bytu se skládá ze vstupní chodby, dvou pokojů, kuchyně, koupelny s vanou a oddělené toalety. Jednou z hlavních výhod bytu jsou bezesporu dva prostorné neprůchozí pokoje, díky kterým je efektivně využita celková plocha. Centrální bytové jádro s kuchyní pak nabízí možnost snadné úpravy dispozice při případné rekonstrukci. Díky orientaci na jihovýchod je byt zároveň dostatečně světlý. Topení a ohřev vody je zajištěno centrálně dálkově. Dle aktuálního předpisu plateb činí platby spojené s bytem celkem 3.964 Kč měsíčně včetně fondu oprav. Zálohové platby se skládají z 850 Kč elektřina, 700 Kč teplo, 340 Kč teplá voda, 200 Kč studená voda, 1.329 Kč příspěvek do fondu oprav, 545 Kč ostatní náklady. Byt, který dává smysl dnes a zároveň nabízí prostor pro vlastní vizi do budoucna – a právě v tom spočívá jeho největší hodnota. Ať už hledáte první bydlení, klidné místo pro život, nebo investici s potenciálem dalšího zhodnocení, tady můžete začít. Zavolejte mi a domluvte si prohlídku – byt je k dispozici ihned.


