Prodej bytu, 4+kk, 110 m²
Prodej bytu 4+kk (4+1) 110 m², Vsetín
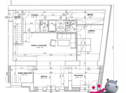
Exkluzivní bydlení v srdci Vsetína Hledáte domov, který spojuje pohodlí moderního bytu a kouzlo vlastní zahrady? Pak je tato nabídka přesně pro vás. Nabízím k prodeji výjimečný byt 4+kk o ploše 110 m² s privátní zahradou 70 m², na kterou vstoupíte přímo z obývacího pokoje. Tady si vychutnáte ranní kávu pod pergolou, odpočinek na perfektně udržovaném trávníku nebo večerní posezení s přáteli při grilování. Byt se nachází v domě zkolaudovaném v roce 2021, přímo v centru města – a přesto v naprostém klidu, pryč od ruchu dopravy. Vše potřebné máte na dosah ruky, doslova jen pár kroků. - moderně a kvalitně zařízený interiér - dvě parkovací místa hned před vchodem - velkorysá šatna o ploše 9 m² - sklep 18 m² s možností dobíjení elektrokol - podlahové topení - bezbariérový přístup Drobnosti jako videozvonek, nebo protipožární dveře, jen umocňují bezpečí a komfort tohoto bytu. Jednotka byla navržena jako 4+1 a lze ji do této dispozice kdykoliv upravit, chybí jen příčka do ložnice a také je zde samozřejmě místi pro okno. Díky této drobné úpravě se změní dispozice na plnohodnotnou 4+1. Díky nízkým nákladům na provoz (PENB D) vás čeká pohodové a útulné bydlení, které nemá na Vsetíně obdoby. V případě, že hledáte něco trošku jiného, určitě mě sledujte na Facebooku: Michal Jandora – realitní služby „bez-starostí“. Pravidelně tam totiž přednostně zveřejňuji nové zakázky. Pokud chcete prezentaci své nemovitosti jako je tato, tak mi, prosím, napište nebo zavolejte. ID: 58640


