Pronájem - dům/vila, 168 m²
Pronájem novostavby rodinného domu 5+kk, Bohunice u Týna nad Vltavou
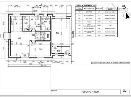
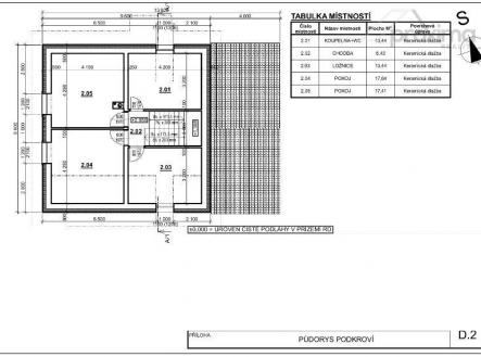
Proxima Reality nabízí k pronájmu zcela nový dvoupatrový rodinný dům 5+kk s garáží a zahradou v obci Bohunice u Týna nad Vltavou. Dům se nachází v klidné lokalitě, ideální pro ty, kteří hledají moderní bydlení obklopené přírodou. Nově je v Bohunicích otevřena školka, takže je lokalita vhodná i pro rodiny s malými dětmi. Dům sousedí s dalším novým domem. Dispozice a vybavení: Přízemí: kuchyně spojená s prostorným obývacím pokojem s krbem, pokoj vhodný jako pracovna nebo ložnice, koupelna se sprchovým koutem a WC, technická místnost, chodba. Dále navazuje garáž pro 1 auto s úložným prostorem nad garáží a chodba. Podkroví: 3 samostatné ložnice a koupelna s vanou a sprchovým koutem, oddělené WC. Půdní prostor je se zaklopením z OSB desek vhodný pro úložné účely. Další výhodou je okrasné jezírko na pozemku nebo možnost využít sousedící oplocený pozemek o výměře cca 3000 m2. Dům je napojen na inženýrské sítě, má vlastní čističku odpadních vod. Dům je vybaven efektivním systém vytápění včetně krbových kamen na dřevo. Na podlahách je položena dlažba a vinyl. Další podmínky: • Pronájem bez domácích mazlíčků • K nastěhování od 1.2.2026 • Nájemné: 29.900 Kč/měs. + zálohy 6.000 Kč/měs., celkem 35.900 Kč/měs. • Kauce: 30.000 Kč • Provize realitní kanceláři: 29.900 Kč Pro další informace kontaktujte makléře zakázky.


