Prodej - dům/vila, 100 m²
Prodej rodinného domu, 100 m², Vrdy, ul. Jiráskova
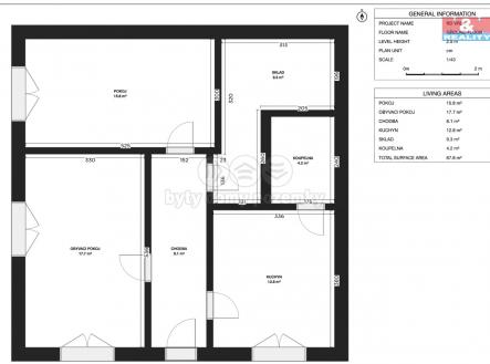
Nabízíme k prodeji rodinný dům v klidné části obce Zbyslav. Tento samostatně stojící cihlový dům se nachází na pozemku o výměře 245 m² a nabízí užitnou plochu 100 m². Dispozice domu zahrnuje 3 místnosti, které poskytují dostatek prostoru pro rodinné bydlení. Dům je v dobrém stavu a připraven k okamžitému nastěhování. Lokalita Zbyslav je ideální pro ty, kteří hledají klidné bydlení s výhodami venkovského prostředí, ale zároveň s dobrou dostupností do města. Nezmeškejte tuto jedinečnou příležitost a přijďte se přesvědčit osobně. Pro více informací a domluvení prohlídky nás neváhejte kontaktovat.


