Prodej - pozemek pro komerční výstavbu, 800 m²
Pozemek/vinný sklep/ubytování, investiční charakter, k.ú. Vrbovec, u hlavního tahu Znojmo-Hatě
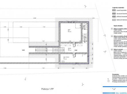
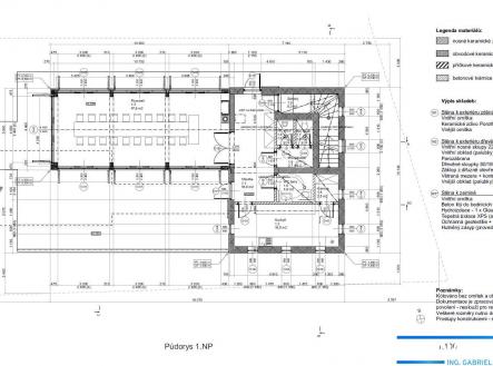
K prodeji nabízíme stavební pozemek o celkové rozloze 800m2 s velkým množstvím využití, hlavní předmět prodeje zde je: Pozemek 800m2 se zpracovanou projektovou dokumentací na ubytovací zařízení, se zahájenou výstavbou počínající ve 2.PP a dále s možností přenechání sousedních pozemků, které jsou v nájmu od obce Vrbovec, s možností budoucího jednání o odkoupení. Projektová dokumentace je zpracovaná na ubytovací zařízení s možností pořádání oslav a akcí, s dvěmi podzemními podlažími (vinárna, lisovna) a jedním nadzemním podlažím (sál, kuchyně, předsálí atd.). Dále je zde počítáno s 6ti ubytovacími kontejnery, které by byly součástí svahu a byly napojeny na veškeré IS. Pro všechny tyto informace uvedené výše, přikládáme v rámci fotogalerie veškeré půdorysy k nahlédnutí a bližší informace či termíny prohlídek budeme řešit s dalšími vážnými zájemci již v rámci osobní komunikace. Pro případnou schůzku či další dotazy kontaktujte pana Ing. Miklíka, volat můžete kdykoliv, včetně víkendů a svátků.


