Prodej bytu, 2+kk, 87 m²
Prodej bytu 2+kk, 60,59 m2, Vrbno pod Pradědem
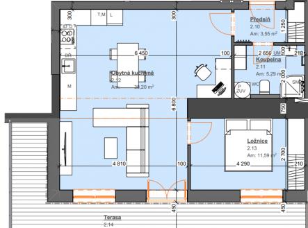
Tento zcela nový, krásný, horský byt je určen jak k celoročnímu bydlení, tak i pro rekreaci. Má promyšlený půdorys, vysoký standard zpracování, potřebné zázemí pro uložení sportovního vybavení, včetně lyžárny a sklepní kóje v suterénu domu. Jeho příjemným doplňkem je parkovací stání, jenž je v ceně bytu a velkorysá terasa. Byt je orientován na jihovýchod a nachází se ve druhém nadzemním podlaží. V prostoru kuchyňské linky jsou připraveny vývody na 230 V, teplé a studené vody, odpady a osvětlení. Bytový dům disponuje výtahem a společnou kolárnou. Město Vrbno pod Pradědem se rozprostírá na soutoku Bílé, Střední a Černé Opavy v podhůří nejvyššího pohoří Moravy a Slezska Jeseníků. V jeho blízkosti se nacházejí lázně Karlova Studánka a nejvyšší hora Jeseníků Praděd. Město je právem nazýváno branou do Jeseníků, prochází jím hranice Chráněné krajinné oblasti Jeseníky. Prodávající si vyhrazuje právo vybrat kupujícího na základě jím zvolených kritérií.

