Prodej - pozemek pro komerční výstavbu, 5 037 m²
Prodej - pozemek pro komerční výstavbu, 5 037 m2
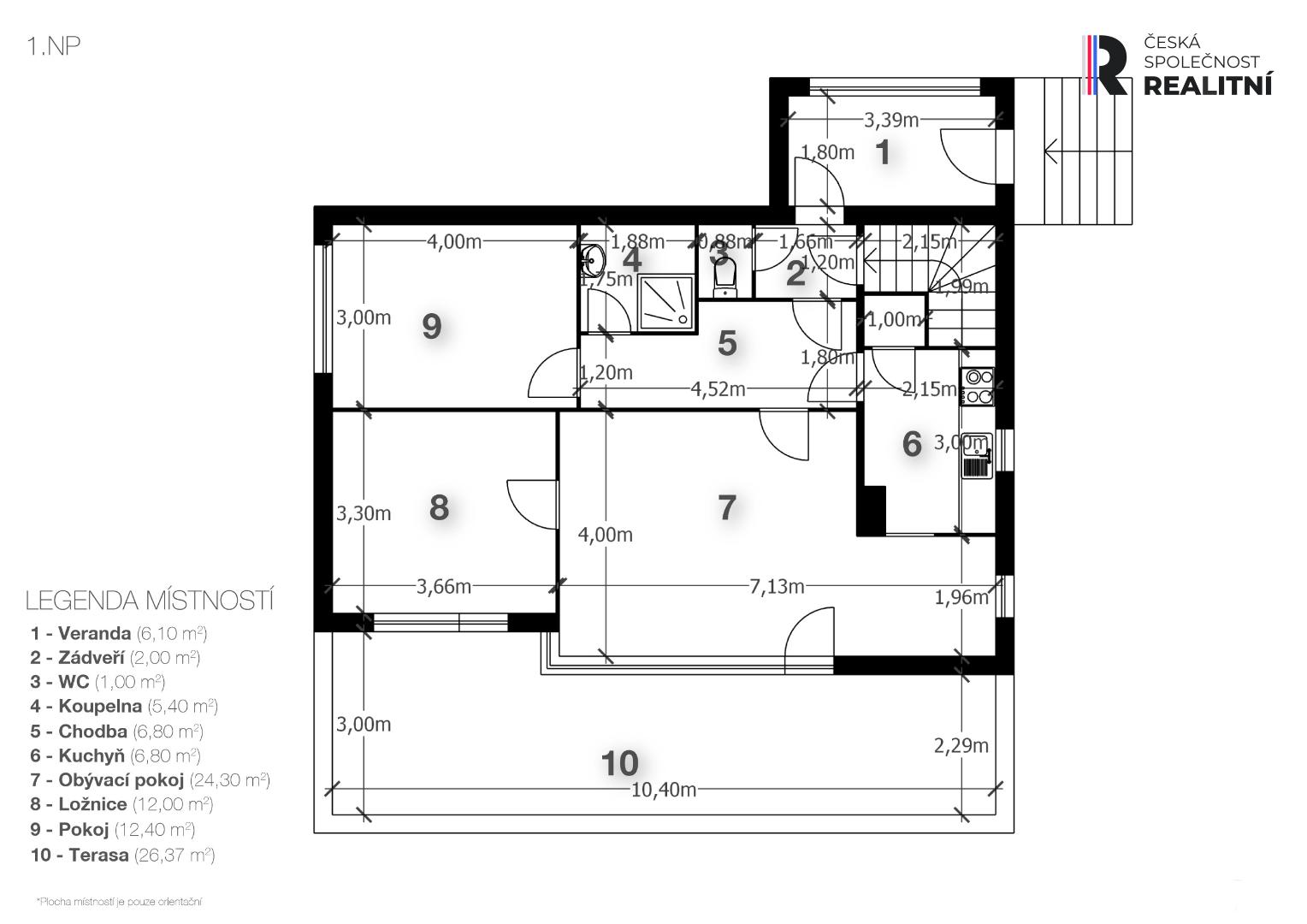
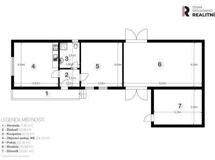
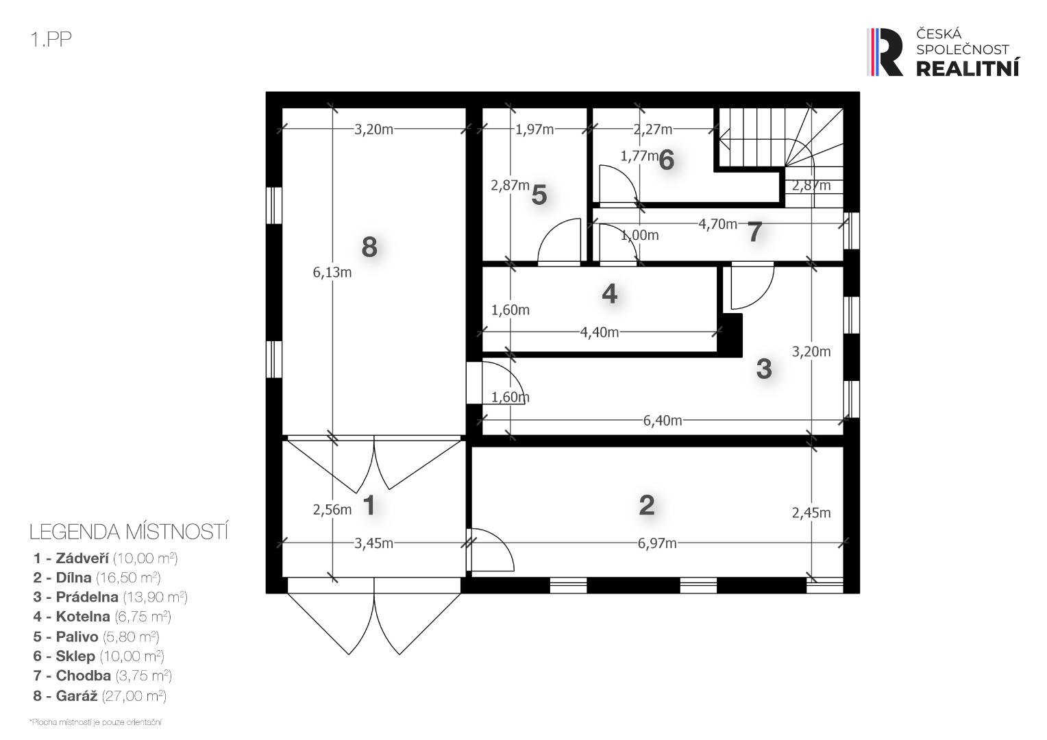
Multifunkční areál s bydlením i podnikáním – přímo u E55, Votice Na prodej nabízíme rozsáhlý a plně oplocený areál se stavbami o celkové výměře 3 345 m², který díky své poloze, velikosti a dispozičnímu řešení představuje výjimečnou příležitost pro podnikatele i investory. Místo kombinuje možnost okamžitého provozu, ubytování pracovníků, skladového zázemí i bydlení v jedné lokalitě. Součástí nabídky jsou dvě samostatné stavby – oba objekty vedené jako rodinné domy – vhodné pro kanceláře, dílnu, sídlo firmy, provozovnu nebo ubytovací zařízení. K areálu navazují také dva zemědělské pozemky o rozloze 1 692 m², díky kterým získáváte celkem 5 037 m² půdy ve vyhledávané zóně BV (bydlení venkovské) s širokým spektrem povoleného využití. Tato územní kategorie umožňuje jak bydlení, tak nekolizní výrobu, sklady, zázemí firmy, parkování techniky či ubytovací služby. Umístění u hlavní silnice E55 zajišťuje perfektní viditelnost pro jakýkoliv druh podnikání – denně zde projede více než 15 000 vozidel. Výhodou je také přímý vjezd z komunikace a blízkost plánovaného sjezdu z dálnice D3 u Voračic, který v budoucnu ještě zvýší dostupnost a hodnotu lokality. Co umožňuje územní plán (BV – bydlení venkovské) -rodinné domy, venkovské usedlosti -drobná a řemeslná výroba bez negativních vlivů -mechanické dílny, servisní činnost -sklady, parkování vozidel a techniky -provozy služeb a obslužné objekty -hobby zemědělství a chov -ubytovací zařízení a ubytování zaměstnanců -možnost parkování přímo na pozemku Klíčové přednosti areálu -propojení bydlení, podnikání a ubytování na jednom místě -maximální viditelnost u E55, možnost legální reklamy (např. vozidlo s plachtou) -velká variabilita díky zóně BV -objekt A připraven k okamžitému využití -připravené zázemí a prostor pro další úpravy -strategická poloha u E55, nedaleko budoucího nájezdu na D3 Popis staveb Budova A -částečně renovovaná, nová plastová okna a zateplení -osazen moderním ekologickým kotlem H8–A se zásobníkem -vhodné pro kancelář, firemní zázemí, ubytování -navazuje na prostornou stodolu – ideální pro sklad či dílnu Budova B -určena k celkové rekonstrukci -vhodná jako dílna, sklad, garáže nebo rozšíření provozu Technické parametry -elektřina 3×25 A -voda přivedena z obecní studny – zdarma -odpady vedeny do vlastní jímky -mírně svažitý oplocený pozemek -přímý sjezd z komunikace E55 Pro koho je nemovitost ideální? Pro stavební a servisní firmy, e-shopy, řemeslníky, dopravce, podnikatele s potřebou skladů či zázemí techniky, nebo investory hledající objekt s možností ubytování zaměstnanců a dalším rozvojovým potenciálem. Energetická náročnost: třída G (PENB se připravuje). V případě zájmu o další informace či odkaz na detailní webovou prezentaci nás kontaktujte.


