Prodej - obchodní prostor, 200 m²
Prodej obchodního prostoru, Volyně
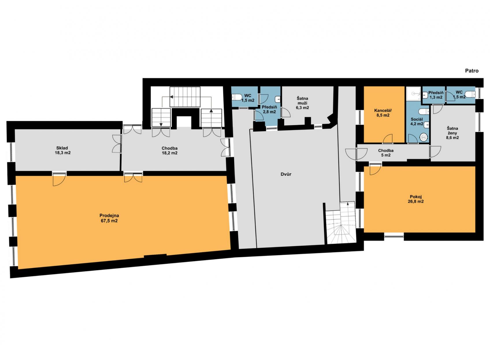
Nabízíme k prodeji nepodsklepený patrový dům ve Volyni, ulice Palackého. Dům má dvě nadzemní podlaží a nevyužitý půdní prostor. V 1 NP se nachází prodejna Tescomy, kancelářský prostor, sociální zařízení a sklady. Ve 2 NP je prodejna Second handu s kanceláří a sociálním zařízením, dále se zde nachází bytová jednotka se třemi pokoji, dvěma WC a koupelnou se sprchovým koutem. Nájemní smlouvy jsou uzavřeny na dobu neurčitou s tříměsíční výpovědné lhůtou. Voda a kanalizace je obecní, do domu je přiveden plyn. Nemovitost má široké možnosti využití skladových a prodejních prostor, možnosti vybudování vlastního bydlení nebo ponechání současného využití nemovitosti. Volyně je oblíbené turistické místo mezi Strakonicemi a Vimperkem. V okolí kompletní občanská vybavenost. Pro domluvení prohlídky a dalších informací kontaktujte makléře zakázky ing. Vendulu Kümmelovou.


