Prodej - dům/vila, 244 m²
Prodej prostorného rodinného domu 244m², pozemek 2 375m², v žádané lokalitě obci Přibyslavice.
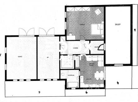
Exkluzivně nabízíme ke koupi prostorný dvoupodlažní rodinný dům s užitnou plochou 244m² a krásným pozemkem o velikosti 2 375m2, na němž se nachází menší zemědělská stavení. Tato nemovitost je ideální variantou pro rodinné bydlení, dvougenerační soužití nebo rekonstrukci dle vlastních představ. Dům je v prvním podlaží řešen jako bytová jednotka o dispozici 2 + kk a velikosti 61,25m2 a dvě garáže o velikosti 43m2. Bytová jednotka je řešena jako kuchyně s jídelnou, pokoj a koupelna se sprchovým koutem. Z chodby bytové jednotky je vstup do sklepa. V druhém podlaží se nachází bytová jednotka 3 + 1 o velikosti 104,25m2. Tato jednotka je dispozičně řešena jako kuchyně s jídelnou, pokoj, dva průchozí pokoje a koupelna. Z této jednotky je vstup také na terasu a zahradu. Plastová okna s dvojskly v celém domě. Na pozemku jsou dvě stavení a stodola. Dům je částečně podsklepen. Vytápění pomocí kotle na pevná paliva a akumulačních kamen. Voda obecní + studna napojena přímo do domu. Plyn je k napojení na hranici pozemku. V obci Přibyslavice se nachází částečná občanská vybavenost jako je knihovna, hasičská zbrojnice, obchod s potravinami a hostinec, dokončena byla výstavba vodovodu a plynofikace. Obec se nachází v klidném prostředí, obklopena přírodou a četnými lesy. V případě zájmu o prohlídku kontaktujte přímo makléře. Průkaz energetické náročnosti nebyl předložen, proto je uvedeno G. Nejedná se o návrh na uzavření smlouvy (nabídku) ve smyslu § 1731 a §1732 zákona č. 89/2012 Sb., Občanského zákoníku. Společnost Edox reality s.r.o. si vyhrazuje právo uzavření všech smluvních vztahů písemně. Uvedené informace mají pouze informativní charakter a mohou se v průběhu inzerce změnit. V případě zájmu o více informací, kontaktujte přímo makléře.


