Pronájem bytu, 2+kk, 50 m²
Pronájem nového bytu 2+kk v obci Vlčková
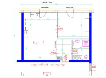
Nabízím Vám k pronájmu krásný nový byt 2+kk v okrajové části obce Vlčková. Dispozice: vstupní chodba s odkládací stěnou, skříněmi a botníkem obytný prostor s kuchyňskou linkou ložnice koupelna se sprchovým koutem a místem na pračku Součástí kuchyňské linky jsou vestavné spotřebiče - lednice, myčka, varná deska, trouba. Okna budou vybavena žaluziemi, topení je podlahové nebo přes elektrokotel. Byt je částečně vybaven - v ložnici se nachází velká šatní skříň a korpus 2-lůžka. Parkování je venkovní u domu, okolí a přístup je ještě v úpravě. Další informace Vám ráda poskytnu telefonicky.


