Prodej - dům/vila, 132 m²
Moderní rodinný dům 4+kk - pravý s vinným sklepem, zahradou – Vlasatice
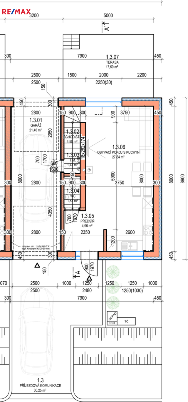
Moderní rodinný dům 4+kk - pravý s vinným sklepem, zahradou – Vlasatice Hledáte pohodlné, zdravé a úsporné bydlení pro svou rodinu v dojezdové vzdálenosti od Brna? Tato novostavba moderního řadového domu ve Vlasaticích si vás získá hned na první pohled – a nejen tím! Dům o dispozici 4+kk a celkové užitné ploše 132 m² je součástí developerského projektu společnosti Service Stav Development, s.r.o., která má za sebou desítky úspěšných realizací po celé ČR. K domu náleží pozemek o výměře 220 m², kde najdete praktickou zahradu a dvě soukromá parkovací stání. Proč právě tento dům? ✅ Energeticky úsporné bydlení – dům spadá do energetické třídy B. Vytápění a chlazení zajišťuje moderní tepelné čerpadlo, v kombinaci s elektrickým bojlerem s podporou fotovoltaické elektrárny. V přízemí i v patře je instalováno podlahové topení, což přispívá k velmi nízkým provozním nákladům. ✅ Kvalitní stavební materiály – dům je postaven z cihel Porotherm 30 a Porotherm 30 AKU, které zajišťují zdravé vnitřní prostředí a vysokou akustickou pohodu. ✅ Vinný sklep (2,5 × 3 m) – ideální místo pro uskladnění vína, stylové posezení s přáteli nebo jako praktický úložný prostor. ✅ Soukromá zahrada – prostor pro dětské hry, pěstování zeleniny, letní grilování nebo klidný odpočinek. ✅ Možnost instalace krbových kamen – dům je na jejich zapojení připraven. ✅ Příprava na venkovní žaluzie – komfortní a estetické řešení stínění pro ještě vyšší pohodlí. ✅ Flexibilní řešení soukromí – možnost individuálního provedení zábran mezi domy pro větší komfort a klid. ✅ Skvělá dostupnost do Brna – 25 minut autem do centra Brna díky přímému napojení na D52. ✅ Příjemná a klidná lokalita – obec Vlasatice nabízí základní občanskou vybavenost, bezpečné prostředí a blízkost přírody. Financování & rezervační proces Kupní cena je rozdělena do 3 splátek: 1) při podpisu rezervační smlouvy - 500 000,- Kč -> kompletní specifikace domu dle individuálních požadavků 2) při podpisu smlouvy o smlouvě budoucí - 4 000 000,- Kč 3) po kompletním dokončení stavby a kolaudaci v červenci 2026 - 4 000 000,- Kč Tento dům je připraven stát se novým domovem pro rodinu, která hledá kvalitní a bezpečné zázemí s rychlým dosahem do Brna a možností individuálního doladění interiéru. Zaujala vás tato nabídka? Neváhejte mě kontaktovat a domluvte si prohlídku!

