Prodej bytu, 3+kk, 78 m²
Podkrovní byt 3+KK
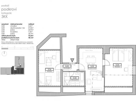
Další byt v Rezidenci Volyňka podkrovní 3+KK (75m²) ve Vimperku k nastěhování. Získejte 30% slevu na kuchyň a nábytek! Nový, moderní byt v Rezidenci Volyňka je připraven pro Vá s! Představujeme Vám další dokončený byt v rámci úspěšného developerského projektu "Rezidence Volyňka" v klidné části Vimperku. Jedná se o moderní podkrovní byt s dispozicí 3+KK a velkorysou užitnou plochou 75 m², který je připraven k okamžitému předání klíčů. Tato nabídka představuje ideální volbu jak pro komfortní rodinné bydlení, tak i jako velmi zajímavou investiční příležitost v podhůří Šumavy. TOP 3 Důvody pro koupi: FINANČNÍ BONUS NA VYBAVENÍ: jako speciální nabídku získává nový majitel slevu 30 % v majitelově nábytkářském studiu. Slevu můžete využít na novou kuchyňskou linku a kompletní zařízení interiéru na míru – výrazně tak snížíte počáteční náklady na vybavení! INVESTIČNÍ POTENCIÁL: díky moderním standardům, lokalitě blízko Šumavy a úspornému plynovému vytápění je byt ideální k pronájmu. Lze ho využít jak pro dlouhodobý, tak i krátkodobý pronájem pro turisty (Airbnb/Booking). KOMFORT A EKONOMIE: byt je vytápěn plynovým kotlem, což zajišťuje nízké provozní náklady a stabilní komfort bydlení. IHNED K NASTĚHOVÁNÍ! Detaily bytu a domu Dispozice: 3+KK (75 m²) – podkrovní byt. Vytápění: Úsporné plynové vytápění. Lokalita: Klidná část Vimperku s rychlou dostupností do centra. Lokalita a okolí – Život v podhůří Šumavy Vimperk nabízí veškerou občanskou vybavenost (školy, obchody, služby) s bonusem blízkosti nádherné šumavské přírody. Řeka Volyňka a okolní lesy jsou na dosah ruky, což zvyšuje atraktivitu lokality pro bydlení i rekreaci. Neváhejte s prohlídkou, dokud je byt aktuálně volný. Financování hypotečním úvěrem je samozřejmě možné ve spolupráci s našimi finančními specialisty. Kontaktujte mě pro sjednání prohlídky, budu se na vás těšit.


