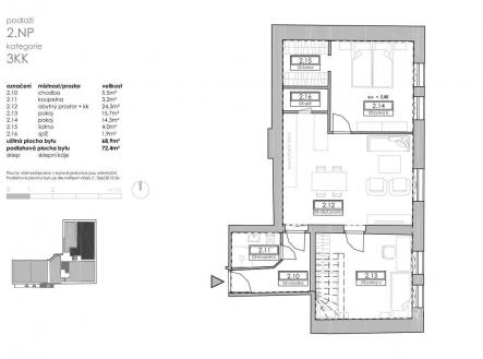
Prodej bytu, 3+kk, 72 m²
Investiční příležitost Rezidence Volyňka, Vimperk, byt 3+KK Ihned k nastěhování
PODKROVNÍ BYT 3+KK (75m²) ve Vimperku, k okamžitému nastěhování. Vybavte si ho se slevou 30%! Představujeme Vám další volný byt z oblíbeného developerského projektu "Rezidence Volyňka" v klidné části Vimperku. Jedná se o podkrovní byt s dispozicí 3+KK a velkorysou užitnou plochou 75 m², který je připraven k okamžitému předání klíčů. Tento byt je ideální volbou pro mladé rodiny, páry hledající moderní zázemí, nebo pro ty, kteří touží po klidném bydlení v šumavském podhůří s plnou občanskou vybaveností. TOP 3 Důvody pro koupi: FINANČNÍ BONUS NA VYBAVENÍ: Jako speciální nabídku získává nový majitel slevu 30 % v majitelově nábytkářském studiu, kterou lze využít na novou kuchyňskou linku a kompletní zařízení interiéru na míru. To Vám výrazně sníží počáteční náklady! PODKROVNÍ ATMOSFÉRA: Byt v podkroví nabízí jedinečnou atmosféru, spoustu světla a útulný pocit s moderním dispozičním řešením 3+KK. IHNED K NASTĚHOVÁNÍ: Nemusíte čekat na dokončení stavby – stačí podepsat smlouvu, vybrat nábytek a můžete bydlet. Detaily bytu a domu Byt se nachází v nově dokončené Rezidenci Volyňka. Je navržen s důrazem na funkčnost a moderní standardy: Dispozice: 3+KK (75 m²) Stav: Novostavba z developerského projektu. Připravenost: Byt je zkolaudovaný a připravený k okamžitému užívání. Vytápění: [DOPLNIT – např. ústřední plynové vytápění, vlastní kotel, atd.] Energetická náročnost: [DOPLNIT – např. třída B – velmi úsporná.] Lokalita a okolí Rezidence Volyňka je situována v klidné části Vimperku, avšak s rychlou dostupností do centra. Vimperk: Nabízí veškerou občanskou vybavenost: školy, školky, obchody, zdravotnická zařízení. Příroda: Lokalita je perfektním výchozím bodem pro milovníky Šumavy, turistiky a cyklistiky. Řeka Volyňka a okolní lesy jsou na dosah ruky. Závěr Nenechte si ujít poslední příležitost k nákupu bytu v tomto úspěšném projektu. Financování hypotékou je samozřejmě možné. Prohlídky jsou možné kdykoliv po předchozí domluvě. Pro více informací a sjednání prohlídky kontaktujte: [Vaše jméno/kontakt] [Váš telefon] [Váš email] [Odkaz na webové stránky projektu/realitní kanceláře]


