Prodej - dům/vila, 300 m²
Prodej Rodinný dům, 300㎡
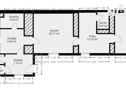
Pozastaveno do jara Pokud hledáte klid, možnost chovu drobného zvířectva a také spousty nadměrných věcí, zahajujeme prodej právě takového domu se zahradou určenou k další možné výstavbě, pár minut jízdy od Kolína, v obci Karlov T.Doubrava. Orientační dispozice obytné části dle fotoprezentace + velmi rozměrná, takřka téměř vyklizená, kamenná stodola se dvěma podlažími. IS: elektřina 230/400, kanalizace a voda připojitelné bez problému. Vytápění zajišťují z majoritní části krbová kamna. Zastavěná plocha a nádvoří 888 m2 (reálně zastavěno 275 m2), zahrada 600 m2 Nemovitost je bez jakéhokoliv omezení či zástavního práva. Karlov je součástí obce Vidice, v ní se nachází škola, školka, Veškerá občanská vybavenost ideálně Kolín či Kutná Hora cca 15min jízdy od domu. Zdarma Vám zajistíme nejlevnější hypoteční úvěr na trhu. Doporučuji si zajistit prohlídku. Pro komunikaci uvádějte evidenční číslo zakázky N116657.


