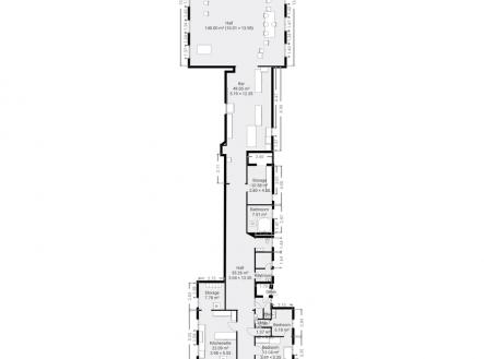
Prodej - hotel, 18 839 m²
Investiční příležitost – Lázně Roztěž u Kutné Hory
Unikátní areál s fungující restaurací, ubytováním a souborem navazujících pozemků o celkové výměře více než 18 000 m² v Lázních Roztěž, jen pár minut od Kutné Hory a v přímém sousedství prestižního golfového resortu Casa Serena. Hlavní přednosti nemovitosti * historický objekt občanské vybavenosti s tradicí * fungující restaurace s barem, profesionální kuchyní a velkým společenským sálem * kapacita ubytování až 30 lůžek * zahradní altán s grilem, udírnou a sportovním zázemím * součástí areálu je také louka a sportovní zázemí, které nabízí možnosti pro volnočasové a rekreační aktivity * přímé propojení s Kaplí Panny Marie – ideální místo pro svatební obřady * pozemky o výměře téměř 1,8 ha v sousedství golfového hřiště Možnosti využití * pokračování provozu restaurace a ubytování * rozvoj areálu jako svatebního a eventového místa * investiční příležitost v atraktivní lokalitě u golfového hřiště Objekt je po částečné rekonstrukci, další úpravy dle potřeb nového vlastníka. Nabízí však skvělý základ pro vytvoření místa s nezaměnitelným geniem loci. Možnost jednat o rozdělení – prodej budovy s přilehlým pozemkem a samostatně navazujících pozemků. Průkaz energetické náročnosti budovy (PENB) bude doplněn, ze zákona tedy uvádíme třídu G. Kontaktujte mne pro více informací či sjednání prohlídky.

