Prodej - dům/vila, 57 m²
Prodej RD 3+KK na klíč 57 m², poz.-619 m², Veverské Knínice
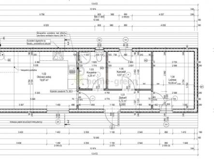
Zprostředkujeme Vám prodej rodinného přízemního domu Michael s dispozicí 3+KK, užitnou plochou 57 m2 a s rozměry 13,5 m x 4,2 m, k výstavbě na klíč na pozemku o velikosti 619 m2 v obci Veverské Knínice, který nabízíme k prodeji ve výhradním zastoupení majitele. Tato nabídková cena je včetně pozemku se šířkou cca 11 m a délkou cca 56,3 m. Vjezd na pozemek vede z obecní cesty. Inženýrské sítě jsou v dosahu několika metrů. RD spojuje praktické řešení a úsporný provoz, takže poskytuje maximální pohodlí pro celou rodinu. Moderní dům, který kombinuje elegantní design s nadčasovými prvky a je vhodný pro celoroční bydlení. Váš nový domov si můžete navrhnout přesně podle svých představ. Máte možnost individuálního rozložení místností, příček i volby materiálů pro interiér a exteriér vašeho domu. Veverské Knínice jsou obec v okrese Brno-venkov v Jihomoravském kraji. Leží na rozhraní Boskovické brázdy a Křižanovské vrchoviny. Krásná příroda v okolí obce poskytuje velké možnosti pro volnočasovou aktivitu v blízkosti Brněnské přehrady a hradu Veveří. Ve Veverských Knínicích můžete navštívit kapličku sv. Ludmily s kamenem z Araratu, případně zrekonstruovanou sokolovnu. Pro výlety do okolí se hodí Podkomorské lesy s památníkem Helenky z Pohádky máje, nebo se můžete vydat na nedalekou vyhlídku Trůn. Mezi další blízké cíle patří Jarošův mlýn ve Veverské Bítýšce , hrad Veveří nebo Auto-motodrom Brno v Ostrovačicích. Obec je součástí dobrovolného svazku obcí Panství hradu veverského. V současné době je v obci 332 domů a žije tu přibližně 954 obyvatel. Obec je vzdálená cca 10 km od města Rosice a cca 20 Km západně od města Brno. Sjezd z dálnice D1 je v blízkosti 3 km u obce Ostrovačice a v centru Brna lze být autem za 15 minut. Vizualizace RD k výstavbě je pouze ilustrativní. Nabídku doporučujeme všem, kteří chtějí bydlet v RD s velkou zahradou za cenu bytu a se zajištěním financování Vám rádi pomůžeme.


