Pronájem bytu, 3+1, 68 m²
Pronájem bytu 3+1 68 m², Velvary
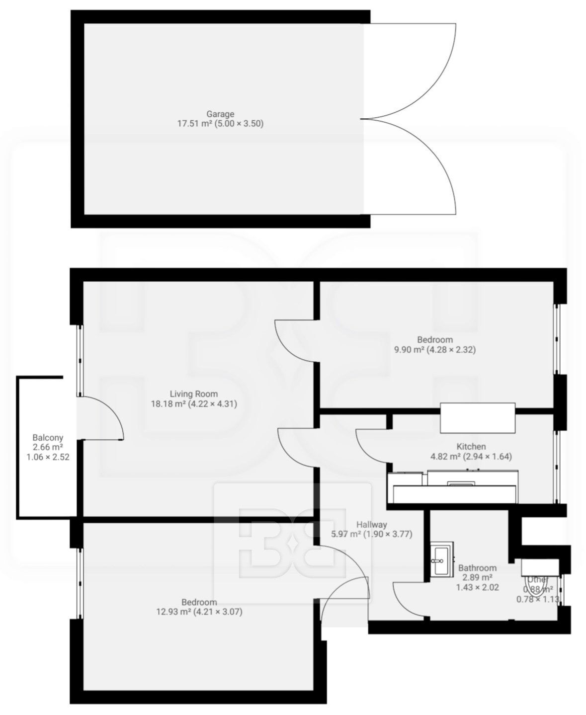
K nastěhování ihned. K pronájmu nabízíme prostorný byt o dispozici 3+1 a celkové výměře 68 m², který se nachází ve 2. patře dobře udržované bytové budovy v ulici Malovarská 537, v obci Velvary. Svojí dispozicí je vhodný pro rodinné bydlení. Z haly je vstup do samostatné 1. ložnice, do koupelny s vanou a záchodem. Dále do kuchyně a prostorného obývacího pokoje se vstupem na balkon. Z obývacího pokoje vede vstup do 2. ložnice. Věnujte pozornost půdorysu v galerii fotek. Byt je celkově v pěkném stavu a nabízí se nevybavený. Vytápění je řešeno wawkami v obývacím pokoji. V ložnicích najdeme elektrická topení. K bytu náleží prostorná garáž, která se nachází hned vedle bytového domu. V garáži je zavedena elektřina a je osvětlená. Dále jsou k bytu 2 sklepy. Díky umístění na kraji města je zde naprostý klid. 10 minut chůze je centrum města a veškerá občanská vybavenost, restaurace, kavárny i výborné dopravní spojení – autobusy jsou v docházkové vzdálenosti. Vlak je cca 15 minut chůze. Nájem: 17.000 kč Zálohy na služby: 1.500 kč + elektřina a plyn se přepisuje na nájemníka Provize: 18.500 kč + DPH Vratná kauce Velkou výhodou pro potenciální nájemce je, že byt je v profesionální správě společnosti Bohemian Estates, jenž správu pro majitele tohoto bytu vykonává. Nájemci je k dispozici kontaktní osoba, která řeší veškeré záležitosti s nájmem spojené (údržba, platby nájemného, vyúčtování, dodatky, a pod.). Nájemci je tak zajištěno bezproblémové užívání bytu s kompletním servisem.


