Prodej - dům/vila, 210 m²
Prodej novostavby domu 6+kk s dvojgaráží, Shell&Core, Velké přílepy
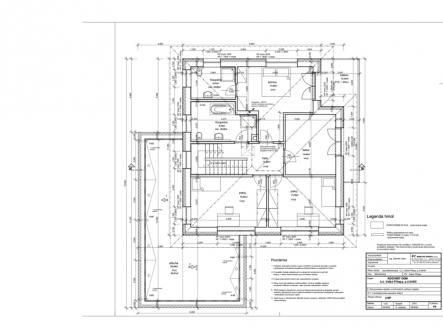
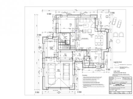
Exkluzivně nabízím k prodeji novostavbu rodinného domu 6+kk s dvougaráží ve vyhledávané lokalitě Velké Přílepy, jen 12 km od centra Prahy. Dům se nachází na rohovém pozemku o rozloze 964 m², v klidné slepé ulici, v sousedství moderní rezidenční zástavby. Architektonicky promyšlený projekt klade důraz na funkčnost, světlo a propojení interiéru se zahradou. Dispozice je ideálně navržená pro rodinu, která hledá prostor, komfort a kvalitu v každém detailu. Stav a dokončení: Dům je v současné době ve fázi finálních prací, které budou dokončeny do cca 3 týdnů do podoby Shell & Core. Aktuálně je hotová kompletní fasáda, probíhá instalace oplocení, terénní úpravy pozemku a osazení skleněných zábradlí na terasách. Uvnitř domu se dokončuje druhé sociální zařízení, štukují se zdi a připravuje se finální kolaudace. Dům bude prodáván zkolaudovaný, s možností kompletního dokončení na klíč developerem, včetně podlah, dveří, sanity a venkovních úprav – dle přání nového majitele. Dispozice a vybavení 1. nadzemní podlaží (plocha 118 m²): Velkorysý obývací prostor (cca 45 m²) s přípravou na krb a přímým vstupem na jižně orientovanou terasu Částečně oddělený kuchyňský kout s prostorem pro bar nebo ostrůvek Pokoj vhodný jako pracovna, pokoj pro hosty či zázemí pro au-pair Koupelna se sprchovým koutem a toaletou Technická místnost s prostorem pro pračku, sušičku a přímým vstupem do garáže Dvougaráž (cca 34 m²) s přípravou na nabíjení elektromobilu 2. nadzemní podlaží (plocha 92 m²): Hlavní ložnice s vlastní koupelnou, toaletou a vstupem na balkon Další tři prostorné pokoje (cca 12–17 m²), z nichž jeden má rovněž přístup na balkon Druhá koupelna s vanou a WC Centrální hala Celková užitná plocha domu činí cca 210 m². Technické řešení: Zdivo z cihel Porotherm 30 Profi Třívrstvá plastová okna s izolačním trojsklem Podlahové vytápění v celém domě Tepelné čerpadlo vzduch–voda LG Therma V Datové rozvody ve všech obytných místnostech Příprava pro venkovní bazén (včetně napojení na rozvody vody a elektřiny) Zpevněné plochy o výměře 82 m² Lokalita: Velké Přílepy patří mezi nejžádanější lokality v okolí Prahy díky své kombinaci klidu, dostupnosti a moderní infrastruktury. V obci se nachází školka, škola, pošta, obchody, restaurace, sportoviště a plánované zdravotní centrum. V bezprostřední blízkosti domu vzniká nová zastávka MHD i retail park, který přinese další služby a pohodlí. Rodiny s dětmi ocení park s dětským hřištěm hned vedle domu. Shrnutí: Dispozice: 6+kk Užitná plocha: cca 210 m² Pozemek: 964 m² Dvougaráž + příprava na nabíječku elektromobilu Tepelné čerpadlo, podlahové vytápění, datové rozvody Stav: Shell & Core (možnost dokončení na klíč) Kolaudace: podzim 2025 Tento dům je ideální pro klienta, který hledá moderní a elegantní rodinné bydlení s nadstandardní kvalitou zpracování, v klidném a perspektivním prostředí s výbornou dostupností do Prahy.


