Prodej - dům/vila, 106 m²
Prodej rodinného domu, 918 m², Velké Opatovice
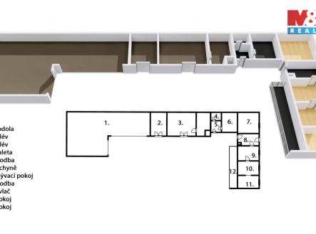
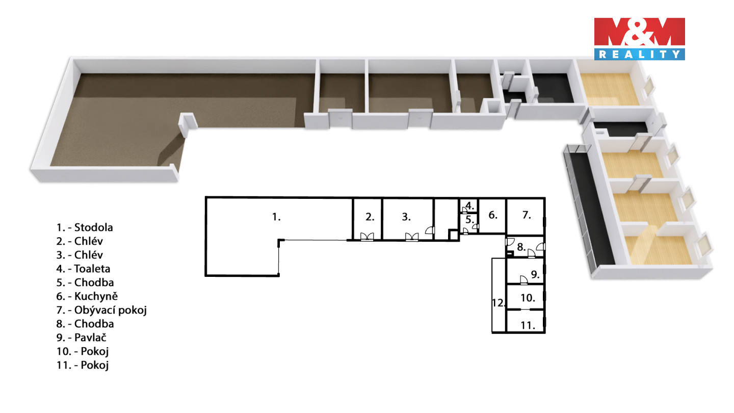
Nabízíme k prodeji rodinný dům ve Velké Roudce u Velkých Opatovic, který spojuje obytné i hospodářské zázemí. Celková užitná plocha domu činí 106 m², doplněná o 193 m² nebytových prostor, kam patří tři chlévy, prostorná stodola, sklep a pavlač. Dispozice domu zahrnuje tři pokoje, obývací pokoj, kuchyň, koupelnu, WC a chodby propojující obytnou část. Vytápění je řešeno krbovými kamny s rozvodem do ústředního topení, ohřev vody zajišťuje bojler. Dům je napojen na veřejný vodovod, odpady jsou svedeny do žumpy. Součástí je i stodola a hospodářské části, které lze využít pro chov, sklad nebo přestavbu. Pozemek o výměře 918 m² tvoří zastavěná plocha a nádvoří. Nemovitost je ideální pro bydlení, rekreaci i hospodářské využití a nabízí široké možnosti úprav, dle potřeb nového majitele. Doporučujeme osobní prohlídku.


