Prodej - pozemek pro bydlení, 2 292 m²
Exkluzivní stavební pozemek se stavebním povolením, Velká Polom
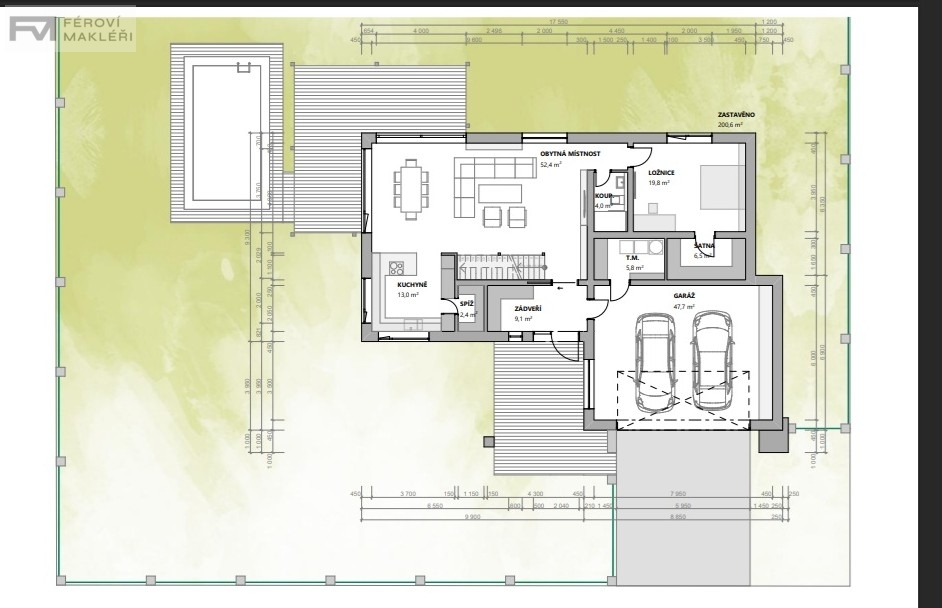
Z důvodu mé nepřítomnosti prosím zájemce o kontaktování na tel: 774 590 196. Děkuji. Nabízíme Vám k prodeji jeden z nejkrásnějších pozemků na ulici Okružní v atraktivní části obce Velká Polom, Ostrava. Stavební pozemek o velikosti 1329m2 (4.928kč/m2) + les 963m2 s nádhernou polohou, zaručuje soukromí, prestiž a možnost krásného bydlení i tomu nejnáročnějšímu klientovi. Součástí pozemku je vypracovaný projekt od renomovaných architektů z Ateliéru Pod věží - nadstandardní dům 5kk s dvojgaráží. Projekt má schválené stavební povolení. Příjezd k pozemku po nové asfaltové cestě. Obecní kanalizace. Pokud hledáte stavební pozemek propojený s přírodou, velice hezkým okolím a s dostupností do Ostravy Poruby do 5 minut, neváhejte mi kdykoliv zavolat, poskytnu Vám více informací.


