Prodej - dům/vila, 93 m²
Prodej rodinného domu 5+1 s velkým pozemkem ve Velké Bukové, v srdci Křivoklátských lesů
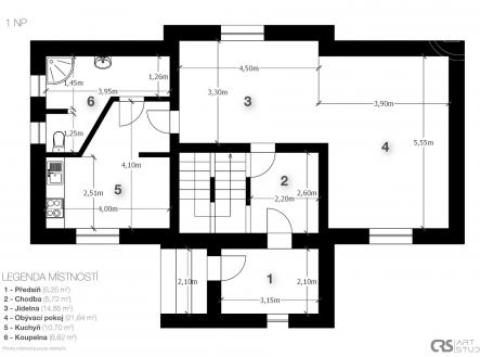
Rodinný dům v srdci přírody – Velká Buková, Křivoklátsko Nabízíme k prodeji rodinný dům 5+1 s velkým pozemkem o rozloze 986 m² v obci Velká Buková, přímo v CHKO Křivoklátsko. Klidné a slunné místo na okraji obce nabízí soukromí, zeleň a krásné výhledy do okolní krajiny. Dům s užitnou plochou cca 141 m² je částečně podsklepený, vytápěný elektrokotlem a krbem, ohřev vody zajišťuje bojler. Připojení na obecní vodovod, kanalizace na hranici pozemku. Součástí je garáž a parkování na vlastním pozemku. V roce 2024 proběhla částečná rekonstrukce. Zahrada nabízí dostatek prostoru pro odpočinek, pěstování nebo dětské hry. Terasa s výhledem do zahrady zve k ranní kávě i večernímu posezení. Lokalita: Velká Buková je malebná obec obklopená lesy, ideální pro klidné bydlení i rekreaci. V okolí jsou turistické trasy, cyklostezky i známý hrad Křivoklát. Křivoklát – 5 km Rakovník – 18 min Beroun – 30 min Praha – cca 50 min Veškerá občanská vybavenost v nedalekých Roztokách a Křivoklátě (škola, školka, obchod, lékař, restaurace). Dům je vhodný pro: rodiny hledající klidné bydlení v přírodě, zájemce o rekreační objekt s celoročním využitím, investory. Cena: 6.890.000 Kč Pro více informací nebo sjednání prohlídky mě neváhejte kontaktovat. PENB: E


