Prodej bytu, 2+kk, 62 m²
Prodej bytu 2+kk, 62m² - Velešovice
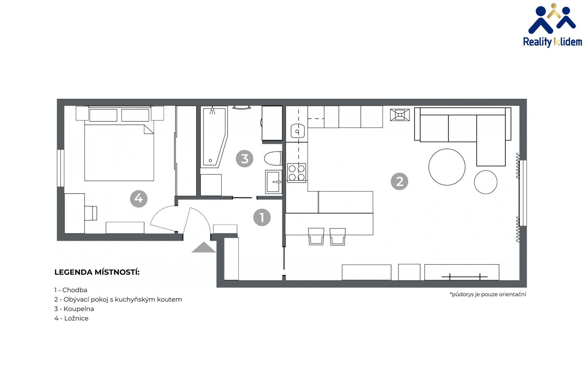
Rádi bychom vám představili tento útulný byt nacházející se v obci Velešovice. Jedná se o byt o rozloze 62 m² podlahové plochy a komorou 4 m², který je umístěn na 1. nadzemním podlaží cihlového bytového domu. Vyúčtování za služby z loňského roku je k dispozici k nahlédnutí. V bytě jsou instalovány bezpečností dveře, plastová okna jsou vybavena žaluziemi a ochrannými sítěmi proti hmyzu. Součástí obývacího pokoje je krásná, na míru zhotovená, kuchyňská linka s vestavnými spotřebiči. Myčka na nádobí, trouba, mikrovlnná trouba, indukční deska a lednička s mrazákem jsou vkusně zakomponovány do interiéru. Byt je vytápěn deskovými radiátory, v koupelně se nachází topný žebřík. Byt je zařízený s vynilovými podlahami, moderní koupelnou a vestavnou skříní v ložnici a na chodbě. Součástí prodeje je i podíl na společné zahradě za domem k bytu též náleží 2 parkovací místa v garáži pod domem. V okolí je dostatek parkovacích stání pro návštěvy a pěší vzdálenost od veškeré občanské vybavenosti, obchodů, restaurací a škol. Velešovice jsou klidná obec nacházející se v blízkosti Brna a Rousínova. Současně Velešovice nabízí vše, co je potřeba k pohodlnému bydlení, mateřskou školu, praktického lékaře, poštu, dětská hřiště, sportoviště i výběh pro psy. V případě potřeby se lze pohodlně a rychle dostat do centra Brna. Tato nabídka je ideální pro ty, kteří hledají moderní a pohodlné bydlení v klidné lokalitě s dobrou dostupností služeb.

