Prodej bytu, 1+1, 37 m²
Prodej byt 1+1, 35㎡
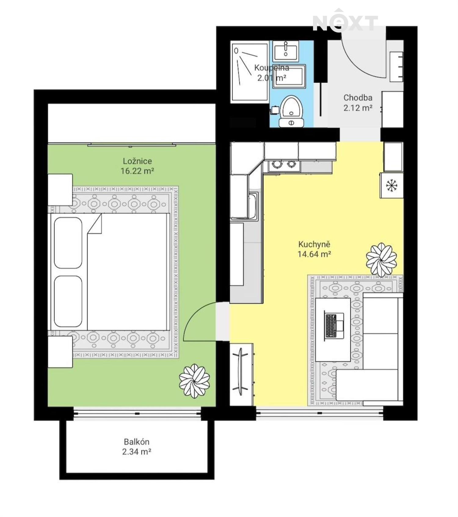
Hledáte byt bez starostí, kde se stačí jen nastěhovat – nebo chytrou investici s okamžitým výnosem? Tento byt 1+1 o celkové ploše 37 m² splňuje obojí. Byt prošel kompletní a pečlivou rekonstrukcí – nová koupelna, elektroinstalace, podlahy i moderní kuchyňská linka. Interiér působí čistě, nadčasově a prakticky. V pokoji je umístěna velká vestavná skříň, která poskytuje dostatek úložného prostoru a šetří místo. Součástí bytu je sklep a možnost využívání společných prostor domu. Velkým benefitem jsou nízké provozní náklady, díky nimž je byt velmi atraktivní i z investičního hlediska – ideální pro dlouhodobý pronájem. Lokalita nabízí kompletní občanskou vybavenost v docházkové vzdálenosti: obchody, školy, školky, zdravotní péči, restaurace i zastávky MHD. Vše potřebné máte doslova po ruce. Byt je ve výborném technickém stavu, bez nutnosti dalších investic a připraven k okamžnému užívání. Nemovitost je možné financovat prostřednictvím hypotečního úvěru. Nezávazně Vám připravíme nabídku financování. Pouze u nás získáte moderní financování až na 35 let, bez ohledu na věk a prokazování příjmů, nebo nutnosti předkládat daňové přiznání (u podnikatelů). Pro komunikaci uvádějte evidenční číslo zakázky N116161.


