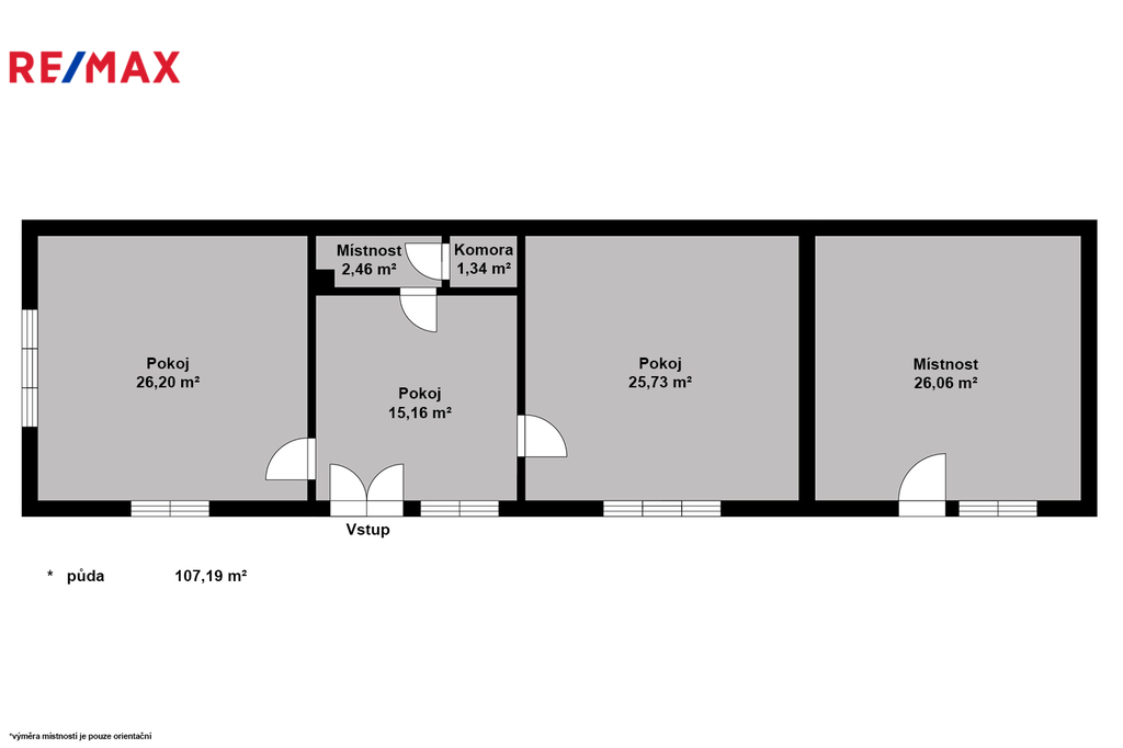
Prodej - dům/vila, 95 m²
Prodej rodinného domu Velenka
Základní popis domu: Dům je momentálně dispozičně 3+kk, nabízí tedy reálný základ pro moderní bydlení. Na pozemku je obecní vodovod a kanalizace — přímé napojení, bez nutnosti vzdálených přípojek. Nově proveden hlavní přívod elektřiny . Objekt je určený k celkové rekonstrukci — ideální pro ty, kdo hledají projekt s možností vytvořit bydlení podle svých představ. Navíc možnost půdní vestavby: dům lze rozšířit a získat další obytné místnosti, čímž zvýšíte jeho hodnotu a komfort. Proč tento dům má potenciál: Základní infrastruktura (voda, kanalizace, elektřina) je na pozemku. Dispozice 3+kk s možností půdní vestavby nabízí flexibilitu — ideální pro rodinu, pro domácí kancelář nebo více pokojů. Dům lze přetvořit v moderní bydlení, a to přesně podle vašich představ a stylu. Velenka je malebná obec s přibližně 350 obyvateli. Obec leží asi 16 km jihozápadně od bývalého okresního města Nymburk, cca 17 km od lázeňského města Poděbrady — tedy v dojezdové vzdálenosti do větších center. 20 min autem na Černý Most. Díky tomu, že obcí prochází silnice II. třídy a je zde možnost napojení na dálnici (blízkost komunikace II. třídy Praha–Poděbrady, a dálnice D11), je zde velmi dobrá dopravní dostupnost. V obci a jejím okolí najdete krásnou přírodu. Díky klidnému, vesnickému prostředí a blízkosti větších měst i přírody je Velenka ideálním kompromisem mezi venkovem a dostupností služeb — vhodné pro rodinné bydlení, rekreaci i trvalý pobyt.


