Prodej - dům/vila, 460 m²
Prodej RD ve Vědomicích
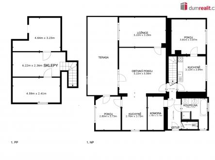
Naše společnost Vám zprostředkuje možný prodej RD v obci Vědomice u Roudnice nad Labem. Jedná se o zrekonstruovaný dům s novou přístavbou před dokončením. Dispozice je 5+1 - dům je velmi prostorný pro velkou rodinu, ale díky šikovně řešené rekonstrukci a rozvržení místností může být i dvougenerační. Vstupní chodba je ve středu nemovitosti, lze tedy využít jako vstup do samostatně bytových jednotek, každá se svou kuchyní. Z chodby je vstup do kromě klasických obytných místností i vchod do budoucí šatny a vstup do sklepa, kde může vzniknout například malá posilovna, díky vzduchotechnice i sauna nebo vířivka a zbyde prostor i pro úložnost čehokoliv. Koupelna a oddělené WC jsou již připraveny k užívání. V koupelně není nutné se střídat, protože díky dvěma umyvadlům, vanou s masážní tryskou a vyzděným sprchovým koutem ji můžete využívat s více členy domácnosti. Je zde i prostor pro pračku a sušičku a umístěný úsporný kombinovaný plynový kotel s částečným podlahovým topením. Dům má už dané dispozice, novou střechu, nové krovy, ale co si můžete zvolit sami jsou podlahové krytiny, osvětlení a kuchyňskou linku dle Vašeho vkusu a stylu, což je vlastně obrovskou výhodou. Z obývacího pokoje a z místnosti za kuchyní, kterou lze využít jako jídelnu nebo malou ložnici, záleží dle počtu osob a potřeby, jsou balkonové dveře do naší zahrady a zároveň na předpřipravenou terasu, která je ohraničena betonovým plotem, vzniká tedy zde opravdové soukromí. Na pozemku je také studna. Část domu do ulice má ještě původní kuchyňskou linku, která se při rekonstrukci využívala. Není nic jednoduššího než její demontáž, položení podlahové krytiny a vzniknou zde další dvě ložnice nebo pracovna. Energetická náročnost budovy: D (méně úsporná) Vzhledem k nedokončené rekonstrukci přikládáme vizualizaci, kde je možné si představit, jak může Váš nový domov vypadat. Matterport 3D scan Vám zase umožní projít nemovitost v klidu domova a pak s Vámi makléřka nemovitosti Jana Čmejlová s radostí celý dům projde osobně. Kupní cenu momentálně neuvádíme, jsme nakloněni diskuzi a dohodě. Ev. číslo: 652685.


