Prodej - pozemek pro bydlení, 3 186 m²
Stavební pozemek na rodinný dům se stavebním povolením 3 186 m² – obec Vavřinec
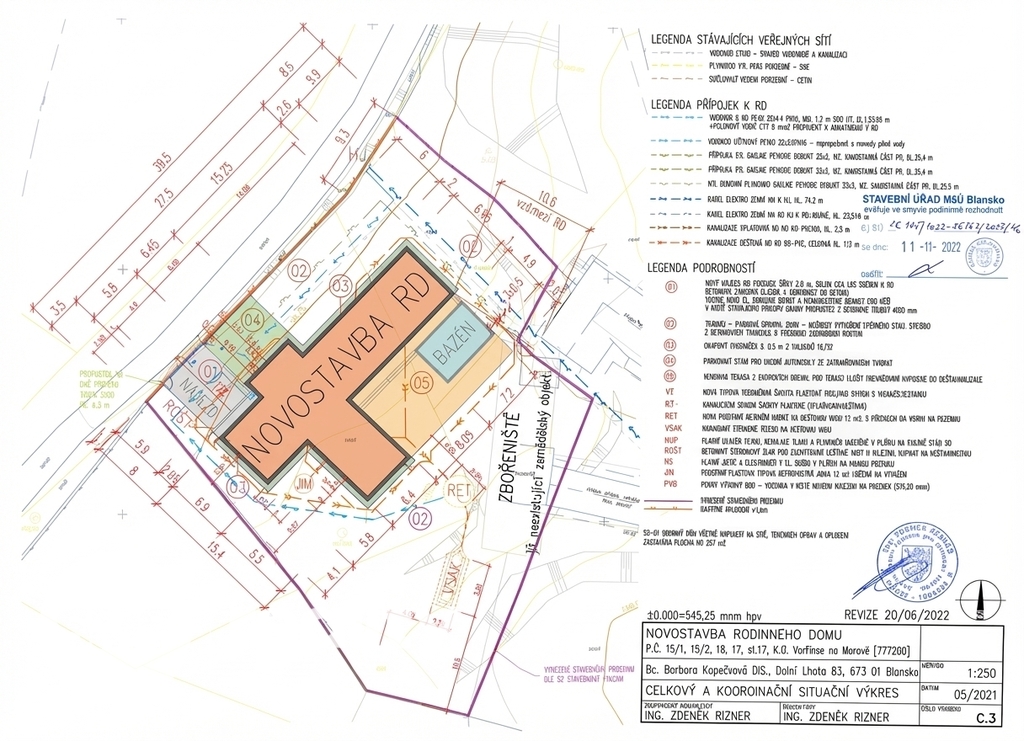
Nabízíme Vám k prodeji stavební pozemek s projektovou dokumentací a pravomocným stavebním povolením na rodinný dům – přístup z obou stran – 3 186 m² – obec Vavřinec (Moravský kras) Nabízíme k prodeji krásný a rozlehlý stavební pozemek o celkové ploše 3 186 m² v obci Vavřinec v srdci Moravského krasu, ideální pro výstavbu rodinného domu, případně i více domů či řadových domů. K pozemku je vypracovaný stavební projekt s PLATNÝM PRAVOMOCNÝM stavebním povolením na rodinný dům. Pozemek je přístupný z obou stran – z přední i ze zadní části, což nabízí výborné možnosti napojení a uspořádání stavby. Lokalita poskytuje klidné a přírodní prostředí v chráněné krajinné oblasti, zároveň s dobrým dopravním spojením. Lokalita – obec Vavřinec Obec Vavřinec leží v okrese Blansko v Jihomoravském kraji, cca 40 km severně od města Brno. Nedaleko od obce se nachází mimo jiné rozhledna Podvrší a zřícenina hradu Blansek, v krásném přírodním prostředí Moravského krasu. Výhody dostupnosti Vzdálenost do Brna cca 40 km, do Blanska cca 10km a do Boskovic cca 16km. Výborné spojení i do dalších obcí Moravského krasu, jako je Sloup či okolní spádové obce. Obec spadá pod město Blansko pro širokou nabídku služeb. Tato nabídka představuje velmi zajímavou možnost – rozlehlý stavební pozemek o 3 186 m² v atraktivní přírodní lokalitě Moravského krasu, s platným projektem a stavebním povolením, přístupem z obou stran a výbornou dostupností do Brna i okolních obcí. Pokud Vás nabídka zaujala, neváhejte mě kdykoli kontaktovat.


