Pronájem - kanceláře, 151 m²
Pronájem atypických komerčních prostor / 151 m² – ul. 5. května, Varnsdorf
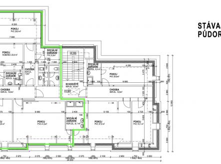
Nabízíme k pronájmu výjimečné komerční prostory s jedinečnou historií. Objekt, který v minulosti sloužil jako celnice a hraniční přechod, byl postupně upraven a dnes poskytuje funkční zázemí s širokými možnostmi využití. Prostory o celkové výměře 151 m² se skládají ze čtyř samostatných, neprůchozích místností, dvou chodeb, dvou sociálních zázemí (WC a sprchový kout). Díky dispozičnímu řešení jsou ideální zejména jako kanceláře, administrativní zázemí, ateliér, skladové prostory, provozovna služeb či jiné komerční využití dle potřeb nájemce. Kuchyňský kout zde aktuálně není vybudován, nicméně úpravy prostoru jsou možné po dohodě s majitelem, což umožňuje přizpůsobení interiéru konkrétnímu účelu podnikání. Nájemné: 11.325 Kč / měsíc Zálohy na služby včetně elektřiny: 5.000 Kč / měsíc Rezervační záloha: 11.000 Kč (po podpisu nájemní smlouvy účtována jako provize RK) Vratná kauce: 30.000 Kč K dispozici: ihned V případě zájmu o více informací nebo domluvení prohlídky nás neváhejte kontaktovat.


